



Pièces
1 pièce
Surface
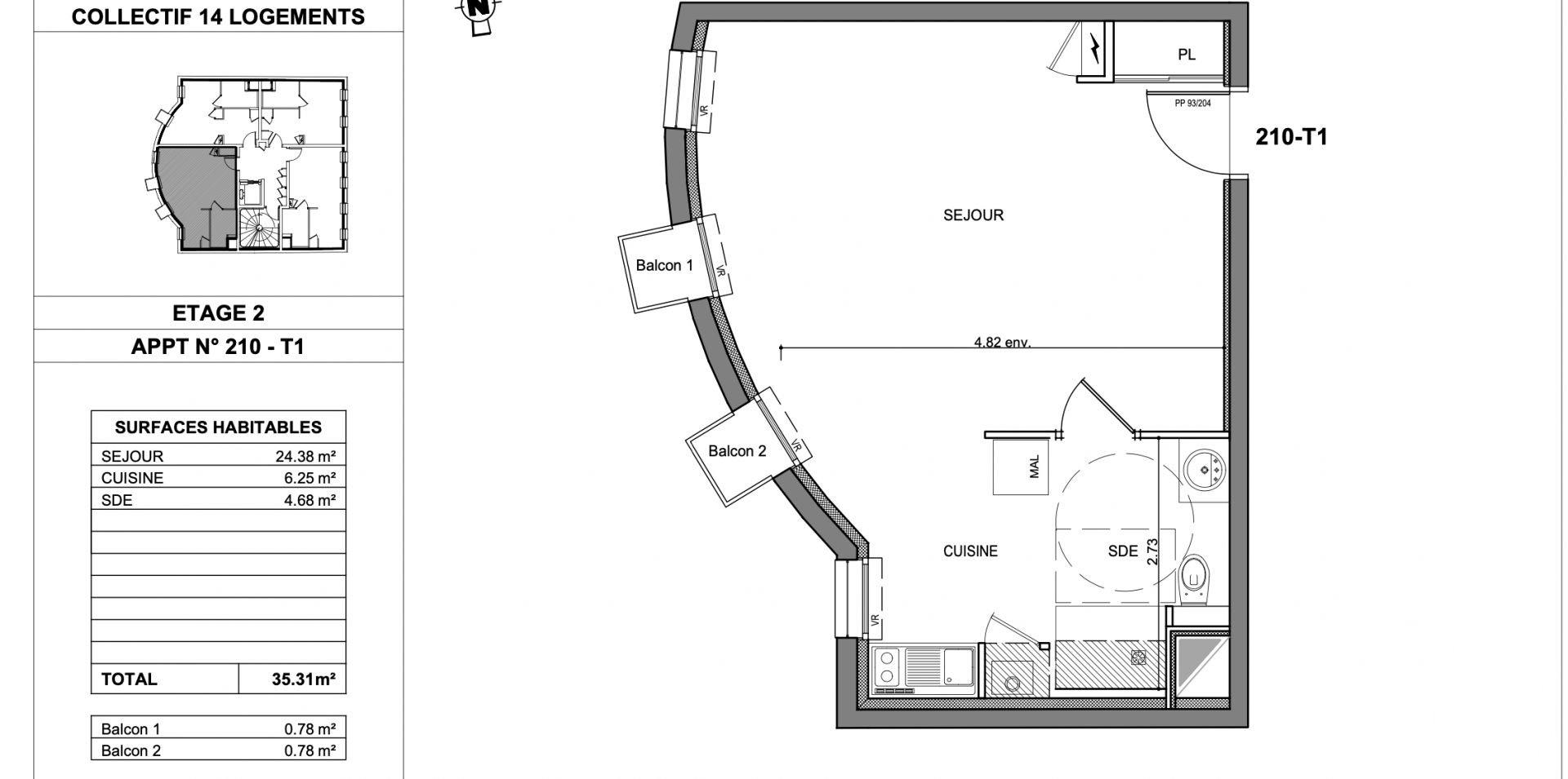
35 m²
Iad France - Malika Belharedj () vous propose : Livraison 2023 Dans le centre historique de Rennes, à 2 pas du centre ville dans une résidence de 3 étages avec ascenseur vous profiterez du calme de la rue. Magnifique appartement T1 de 35 m² environ, au 2ème avec deux balcons. Une grande pièce de vie de 24 m² environ exposé ouest avec un balcon, une cuisine équipée et aménagée avec un balcon et une salle d'eau avec un wc. Vous disposerez également de deux locaux à vélos au rez-de-chaussée. Parking hoche disponible avec un abonnement. Résidence principale ou investisseurs. Honoraires d’agence à la charge du vendeur. Bien non soumis au Dpe. Les informations sur les risques auxquels ce bien est exposé sont disponibles sur le site Géorisques : La présente annonce immobilière a été rédigée sous la responsabilité éditoriale de Mlle Malika Belharedj Ei (Id 54956), mandataire indépendant en immobilier (sans détention de fonds), agent commercial de la Sas France immatriculé au Rsac de Rennes sous le numéro , titulaire de la carte de démarchage immobilier pour le compte de la société France Sas. Retrouvez tous nos biens sur notre site internet. Loi Alur : Honoraires charge vendeur. (Gedeon )
Source
Être proprio
Publié le
29 avril 2025
Vue pour la dernière fois
il y a 1 heure