




Pièces
4 pièces
Surface
126 m²
Consommation énergétique
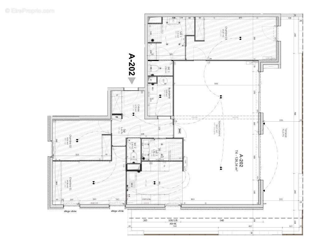
Nimes Appartement D'exception T4 Dernier Etage Terrasse Possibilite GARAGE Découvrez ce bien rare et prestigieux niché en position dominante dans un environnement verdoyant, au calme absolu, en fond d’impasse. Situé dans une résidence neuve haut de gamme, cet appartement T4 de 126 m2 habitables séduit par ses prestations modernes et son cadre vie privilégié : Imaginez-vous profiter d’un véritable havre de paix en dernier étage, à proximité du centre-ville et des commerces de proximité. Des espaces pensés pour le confort : Séjour lumineux de plus de 60 m2, 3 chambres avec rangements, 2 salles d’eau modernes aux finitions raffinées, 2 Wc séparés pour plus de praticité, une buanderie fonctionnelle. Prestations haut de gamme La résidence bénéficie d’équipements dernier cri, alliant sécurité, confort et esthétisme. Bénéficiez d'une grande terrasse de 41 m2, véritable pièce de vie supplémentaire. En option :Possibilité d’acquérir un garage fermé, à partir de 15 000 €. La résidence est particulièrement performante au plan énergétique et en matière de bilan carbone et répondra aux normes des bâtiments Re2020 (seuils 2025). Livraison décembre 2026. Bien soumis au statut juridique de la copropriété. Nombre de lots : 42 dont 16 appartements. Charges annuelles de copropriété (montant moyen annuel quote-part du budget prévisionnel vendeur) : 15 à 20 €/m2 de surafce habitable. Procédure en cours : non. Honoraires charge vendeur. Les informations sur les risques auxquels ce bien est exposé sont disponibles sur le site Géorisques :
Source
Être proprio
Publié le
6 novembre 2025
Vue pour la dernière fois
il y a 1 heure