




Pièces
2 pièces
Surface
47 m²
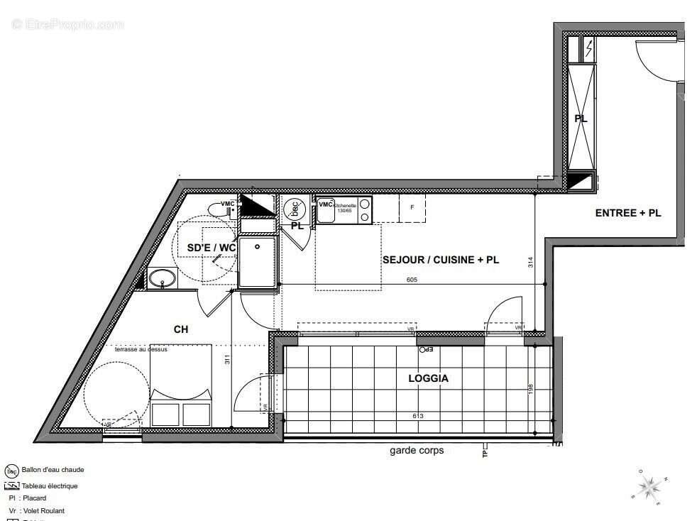
Ce bien consiste en un appartement de 47 m² au Rdc, expose Est, avec 1 chambres de plus le sejour donne sur la terrasse de 12 m². Cet appartement se trouve cote jardin, il n y a donc pas de nuisances sonores et une belle vu depuis la loggia. Les toilettes et la salle de bain ne sont pas independantes. Le centre-ville est a cote, sans son lot d'agitation, juste les commerces et les ecoles a proximite. N hesitez pas nous au [Coordonnées masquées] ou au [Coordonnées masquées] ou nous ecrire directement sur notre site internet pour obtenir de plus amples informations. Dans une copropriété de 24 lots. Aucune procédure n'est en cours. Non soumis au Dpe. Les informations sur les risques auxquels ce bien est exposé sont disponibles sur le site Géorisques : .
Source
Être proprio
Publié le
19 mars 2025
Vue pour la dernière fois
il y a 14 heures