




Pièces
3 pièces
Surface
63 m²
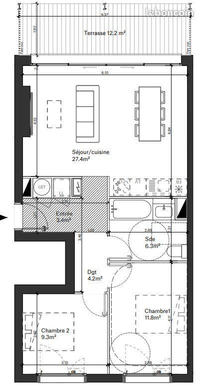
Votre Terrasse Entouree De Verdure En Plein Coeur Des CHARTRONS Située en plein coeur des Chartrons, cette résidence saura vous séduire par son îlot paysager, véritable écrin de verdure préservé au sein de la ville, propice à la détente, aux promenades et aux moments de convivialité. À l'image du quartier, elle incarne une élégance discrète, à deux pas des quais aménagés, du marché des Chartrons, d'établissements scolaires réputés, ainsi que du tramway et des transports en commun, offrant un accès rapide et fluide au centre-ville. Vous entrez sur une spacieuse pièce de vie avec cuisine ouverte, idéal pour recevoir ou profiter de moments de convivialité en famille. À l'extérieur, une terrasse prolonge le séjour, offrant un vrai lieu de vie ouvert sur l'îlot paysager de la résidence, savourez y votre café dans un cadre bucolique en plein coeur de la ville. Côté nuit, deux chambres confortables vous attendent ainsi qu'une salle de bain moderne avec WC. Un appartement élégant dans un cadre de vie privilégié au coeur des Chartrons. Une place de parking couverte et sécurisé complète ce bien en Sus (15 000). - Prix Tva 5.5% avec parking : 313 500 - Prix Tva 20% avec parking : 356 500 - Aucun travaux à prévoir - Frais de Notaires Réduits - Garanties - Re 2020 - ... Visuel non contractuel - suggestion d'aménagement VOTRE Terrasse Entouree De Verdure En Plein Coeur Des CHARTRONS Honoraires à la charge du vendeur. Dans une copropriété de 42 lots. Aucune procédure n'est en cours. Dpe en cours. Les informations sur les risques auxquels ce bien est exposé sont disponibles sur le site Géorisques : . Votre conseiller Rh Patrimoine : Maxime HERVE Agent commercial (Entreprise individuelle) Rsac J Rcp J
Source
Être proprio
Publié le
11 juin 2025
Vue pour la dernière fois
il y a 7 heures