




Pièces
1 pièce
Surface
38 m²
Consommation énergétique
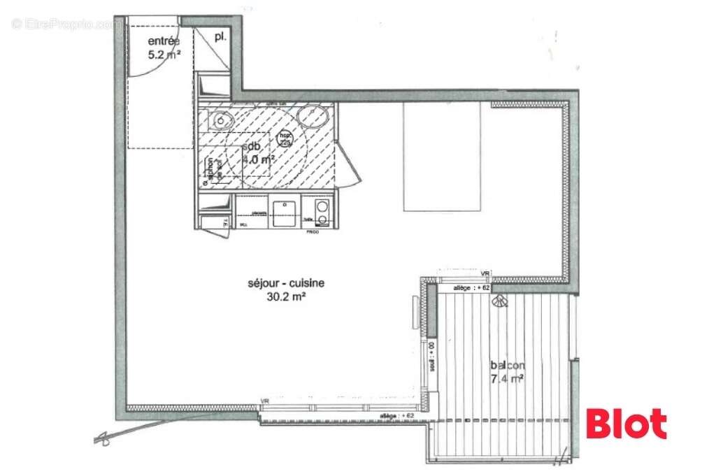
Appartement T1 bis de 39 m² Special Investissement Locatif Logement vendu loué, au sein d'une Résidence Séniors avec services (uniquement investissement : pas de possibilité d'y habiter ou d'y loger un proche) L'appartement est situé dans la résidence « Le Petit Jardin », rue Anatole France, dans le quartier historique de Recouvrance à Brest. La résidence, livrée en 2014, jouit d'un emplacement idéal, à quelques encablures de la base navale et du centre-ville de Brest, dans un environnement calme et verdoyant, proche des transports en commun et commerces. Loyer annuel : 4 960Eur Ht / an garanti. Les loyers sont réglés que l'appartement soit loué ou non, grâce au bail commercial qui lie le propriétaire au gestionnaire / locataire. Gestionnaire/Locataire : Groupe Lamotte (bail commercial) Possibilité de défiscalisation (Lmnp) Classe Energie : D - 165 kWh/m²/an Classe Climat : D - 34 kgCO2/m²/an Référence : 607Ir Nombre de lots : 132 dont 93 à usage d'habitation. Les informations sur les risques naturels, miniers, ou technologiques, auxquels ces biens sont exposés, sont disponibles sur le site Cet appartement vous est présenté par l'agence Blot Immobilier Brest - 26 rue Algésiras : [Coordonnées masquées] Au prix de 99 500 Eur Fai dont 8,15% Ttc d'honoraires à la charge de l'acquéreur - Prix net vendeur : 92 000 Eur
Source
Être proprio
Publié le
3 février 2026
Vue pour la dernière fois
il y a 6 heures