




Pièces
3 pièces
Surface
62 m²
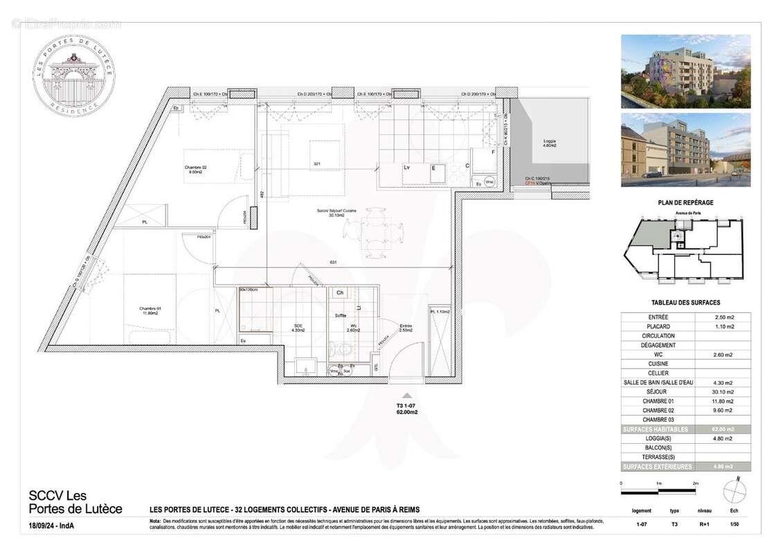
A Vendre - Appartement T3 - Neuf Vefa Livraison Prévisionnelle : 1er trimestre 2026 Reims Quartier Courlancy Située Avenue de Paris à Reims (51), la résidence Les Portes de Lutèce bénéficie d'un emplacement privilégié, au cur du quartier Courlancy. Vous profitez d'un cadre de vie paisible, tout en restant à proximité immédiate du centre-ville de Reims, des commerces, écoles, équipements de santé et transports en commun. Composée de 32 appartements, du T1 au T4, la résidence propose des logements lumineux, bien orientés, tous prolongés par un espace extérieur privatif : balcon, loggia ou terrasse. Découvrez ce bel appartement T1 de 62 m² situé au 1er étage, comprenant une entrée avec placard, une pièce de vie avec cuisine ouverte, 2 chambres, une salle d'eau et des Wc. L'appartement dispose d'un balcon de 4.80 m² et d'une place de stationnement privative sécurisée. Les Prestations : - Résidence sécurisée avec ascenseur - Stationnements privatifs - Chauffage par radiateurs eau chaude, équipés de robinets thermostatiques - Local vélo / poussette - Menuiseries extérieures en double vitrage, fenêtres oscillo-battantes - Frais de notaire réduits - Exonération de taxe foncière pendant 2 ans - Prêt à Taux Zéro (Ptz) pour les primo-accédants - Garanties constructeur incluses Transports Et Commodités : - À deux pas des commerces de proximité (supermarché, pharmacie, boulangerie) - Proche des écoles, lignes de bus, Parc Léo Lagrange - Accès rapide aux gares Tgv Reims Centre et Bezannes - À quelques minutes des grands axes routiers (A4, A26, A344) Pour tout renseignement complémentaire, contactez-nous au [Coordonnées masquées].
Source
Être proprio
Publié le
16 mai 2025
Vue pour la dernière fois
il y a 16 heures