




Pièces
3 pièces
Surface
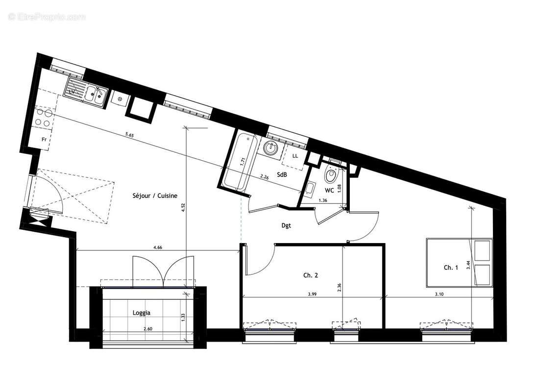
62 m²
Consommation énergétique
Au sein d'une résidence de 8 appartements seulement, Triangle d'Or vous propose ce T3 au 1er étage. Séjour de 29m2, 2 grandes chambres dont une de 14m2 et une autre de 9m2. Une salle de bain de 3.79m2 et un wc séparé. Une loggia de 3.07m2 complète ce bien. Plus d'informations sur demande, n'hésitez pas à nous consulter. Images d'illustration, non contractuelles.
Source
Être proprio
Publié le
18 mars 2025
Vue pour la dernière fois
il y a 16 heures