




Pièces
8 pièces
Surface
196 m²
Consommation énergétique
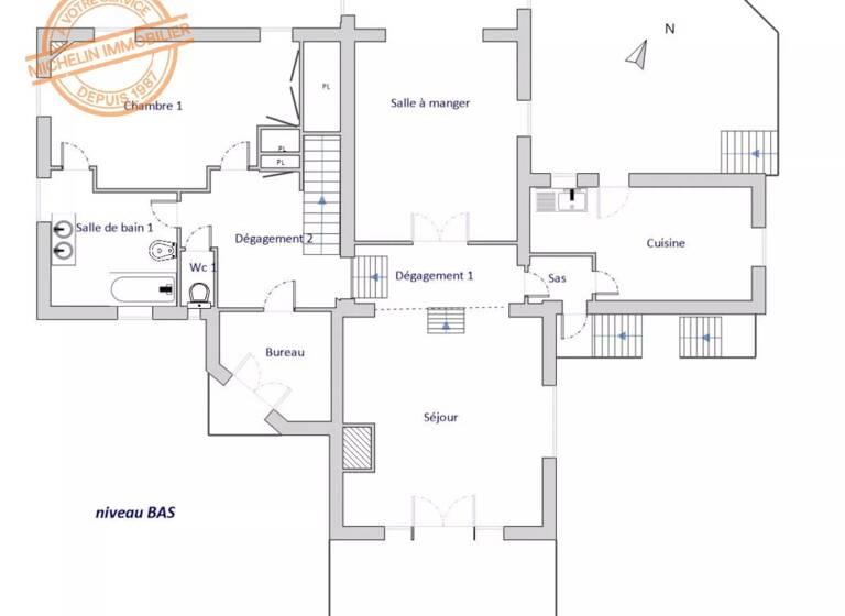
Proche de l'Ile Barbe, maison à rénover de 226 m2 au sol sur sa parcelle piscine de 1826 m2. Grande cave et garage. Vous serez séduit par son volume, son fort potentiel, ses vitraux et son architecture. Actuellement la maison est composée de 4 chambres, elle peut être redistribuée pour optimiser l’espace. Prestations d'origine ... Pour plus de renseignements, n'hésitez pas nous . Informations techniques : Chauffage au fuel, tout à l'égout, simple vitrage. Un budget est à prévoir pour une rénovation. Diagnostics immobiliers et audit. Informations loi Alur : Superficie Loi Carrez totale : 195,73 m² Surface au sol : 226,03 m2 Consommation conventionnelle : 385 kWh ep/m².an (Classe G) Estimation des émissions : 121 kg eqCO2/m².an (Classe G) Estimation des coûts annuels d’énergie du logement Les coûts sont estimés en fonction des caractéristiques de votre logement et pour une utilisation standard sur 5 usages entre 5910€ et 8050€ par an Prix moyens des énergies indexés au 1er janvier 2021 (abonnements compris) Taxe foncière 2024 : 2594 € Prix: 789 000 euros. Honoraires d'agence inclus dans le prix à la charge de l'acquéreur (4% Ttc du prix proposé soit 31560 € soit un prix net vendeur de 757 440 €). Agent commercial (Ei) Contact commercial privilégié : Maëlle Saget [Coordonnées masquées]
Source
Être proprio
Publié le
28 février 2025
Vue pour la dernière fois
il y a 9 heures