



Pièces
1 pièce
Surface
15 m²
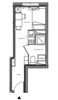
Iad France - Stéphane Geffroy () vous propose : Logement neuf T1, quartier Doulon à Nantes, Ideal Investisseur Lmnp. Profitez du dispositif fiscal Lmnp (loyer garanti par bail meublé de 10 ans, récupération de Tva, fiscalité avantageuse.) Dans une résidence étudiante gérée de très belle qualité, disposant de nombreux espaces communs (salle de coworking, salle fitness, laverie, cuisine…), située à proximité immédiate du parc de de la Noë Mitrie, avec les transports en commun à ses pieds permettant de rejoindre rapidement le campus universitaire et la gare. Livraison 2ème T 2027. Logement T1 de 15,5 m² environ disposant d’une pièce de vie avec kitchenette et placard et d’une salle de bains avec douche, vasque et toilettes. Mobilier en option. Belles prestations : menuiseries double vitrage avec volets roulants électriques, chauffage électrique individuel, kitchenette équipée dans cuisine, parois de douche amovibles, visiophone… Saisissez l’opportunité d’investir, avec les garanties du neuf ! Honoraires d’agence à la charge du vendeur. Bien non soumis au Dpe. Les informations sur les risques auxquels ce bien est exposé sont disponibles sur le site Géorisques : La présente annonce immobilière a été rédigée sous la responsabilité éditoriale de M. Stéphane Geffroy Ei (Id 69936), mandataire indépendant en immobilier (sans détention de fonds), agent commercial de la Sas France immatriculé au Rsac de Nantes sous le numéro , titulaire de la carte de démarchage immobilier pour le compte de la société France Sas. Retrouvez tous nos biens sur notre site internet. Loi Alur : Honoraires charge vendeur. (Gedeon )
Source
Être proprio
Publié le
29 avril 2025
Vue pour la dernière fois
il y a 4 heures