




Pièces
5 pièces
Surface
153 m²
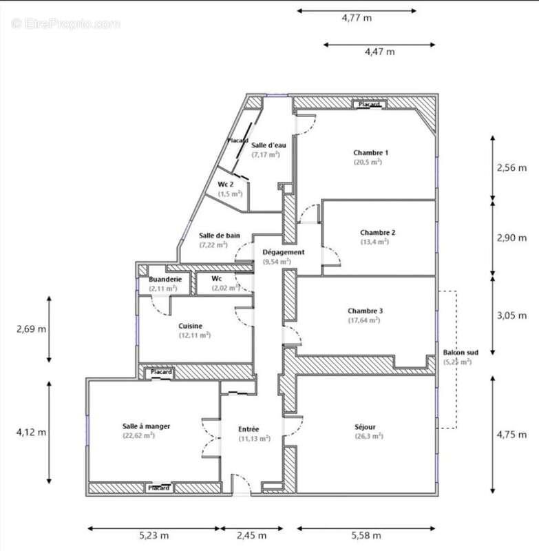
Carré d'or : en plein coeur de Nice, dans un immeuble bourgeois de 1880 très bien tenu, ce magnifique 5 pièces traversant de 153 m2 loi Carrez (165 m2 au sol), traversant Sud/Nord, en très bon état (parquets, moulures, belle hauteur sous plafonds), comprenant : Entrée, séjour sur balcon sud, salle à manger, cuisine équipée, chambre sud sur balcon, autre chambre sud, salle de bains avec baignoire, douche, double vasques et fenêtre, grande suite au sud avec salle d'eau, Wc indépendant et dressing. Cave double en sous-sol. A saisir ! Dpe C
Source
Être proprio
Publié le
13 juin 2025
Vue pour la dernière fois
il y a 12 heures