



Pièces
2 pièces
Surface
42 m²
Consommation énergétique
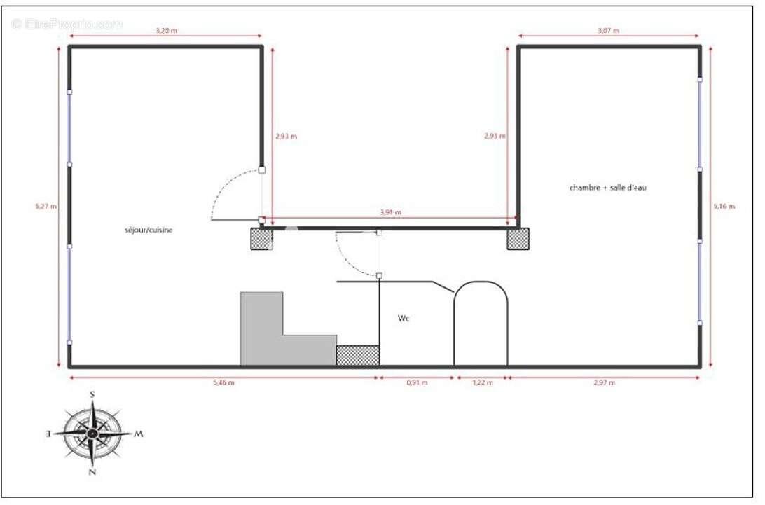
13002 Marseille Le Panier- Vieile Charite – Beau Potentiel De Renovation 2 Pièces - 42 M² - Positionnement Privilégié - Lumineux Et CALME efficity, l'agence qui estime votre bien en ligne, vous propose En Exclusivite cet appartement à rénover idéalement situé au cœur du quartier du Panier. Niché dans la rue du Timon, ce bien au calme et lumineux offre un environnement exceptionnel propice à la quiétude et à la tranquillité. La Vieille Charité, emblème du quartier, se trouve à proximité, ajoutant ainsi une touche culturelle et historique à votre quotidien. Cet appartement de 2 pièces dispose d'une surface de 42.09m² en plain-pied, avec une exposition offrant une luminosité naturelle tout au long de la journée. Il est composé d'une pièce de vie de plus de 20m² avec sa cuisine ouverte et une chambre avec sa salle d'eau. Ne manquez pas l'opportunité de visiter ce bien rare au sein du quartier pittoresque du Panier. Pour plus d'informations ou pour organiser une visite, contactez Carol Faoro du lundi au dimanche au [Coordonnées masquées] ou par mail à [Coordonnées masquées]. 13002 Marseille Le Panier- Vieille Charite - Great Renovation Potential 2 Rooms - 42 M² - Privileged Location - Bright And QUIET efficity, the online agency that evaluates your property, exclusively offers this apartment to renovate ideally located in the heart of the Panier district. Nestled in the Timon street, this quiet and bright property offers an exceptional environment conducive to tranquility and peace. The Vieille Charité, emblem of the neighborhood, is nearby, adding a cultural and historical touch to your daily life. This 2-room apartment has a surface area of 42.09m² on one level, with an exposure offering natural light throughout the day. It consists of a living room of over 20m² with an open kitchen and a bedroom with its own bathroom. Do not miss the opportunity to visit this rare property in the picturesque Panier district. For more information or to arrange a visit, contact Carol Faoro from Monday to Sunday at [Coordonnées masquées] or by email at [Coordonnées masquées]. Les informations sur les risques auxquels ce bien est exposé sont disponibles sur le site Georisque : georisques. Gouv. Fr Carol Faoro - Ei - est Agent Commercial mandataire en immobilier, immatriculé au Registre Spécial des Agents Commerciaux du Tribunal de Commerce de Marseille sous le n°. Siège social du mandant : effiCity, 48 avenue de Villiers - 75017 Paris - Société par Actions Simplifiée, société au capital de 132 373,05 euros, immatriculée au Rcs Paris 497 617 746 et titulaire de la Carte professionnelle Cpi 75[Coordonnées masquées]02 025 - Cci Paris Idf - Caisse de Garantie : Galian Assurances 89 rue de la Boétie 75008 Paris
Source
Être proprio
Publié le
29 juin 2025
Vue pour la dernière fois
il y a 1 jour