



Pièces
2 pièces
Surface
36 m²
Consommation énergétique
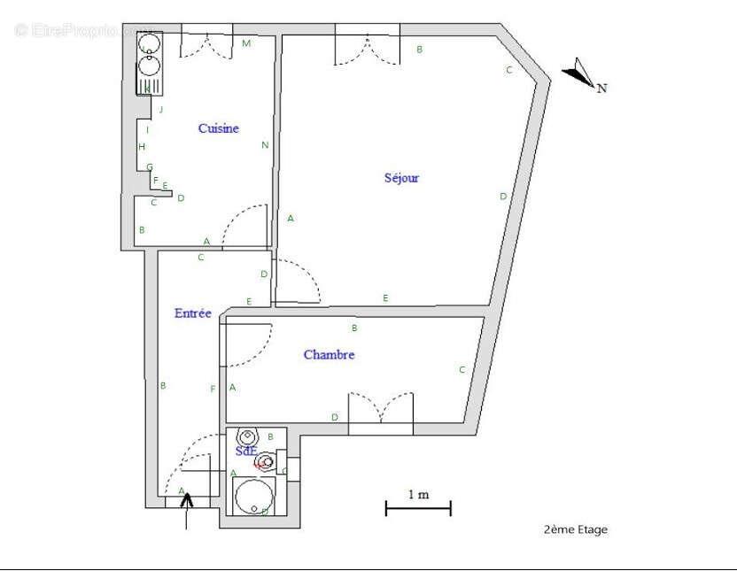
Idéal investissement locatif, dans immeuble ancien appartement de type 1/2 de 37 m2 comprenant un hall, séjour, une cuisine indépendante, une chambrette, une salle d’eau avec WC. Appartement bien agencé, double vitrage, donnant côté cour avec vue dégagée. Prévoir travaux A proximité de toutes les commodités comme les autoroutes, la gare, les commerces et la faculté Les informations sur les risques auxquels ce bien est exposé sont disponibles sur le site Géorisques : Mandat 293 Thierry Suarez [Coordonnées masquées] Massalia Real Estate 5 Cours Julien 13006 Marseille Cette annonce vous est proposée par Suarez Thierry - Ei - NoRSAC: , Enregistré à Chambre de commerce et de l'industrie de Marseille
Source
Être proprio
Publié le
5 juillet 2025
Vue pour la dernière fois
il y a 21 heures