



Pièces
2 pièces
Surface
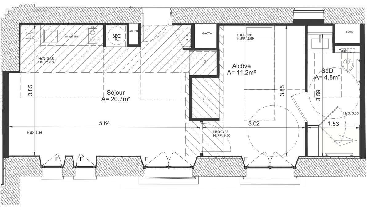
36 m²
Investissez dans le bâtiment historique de la Polyclinique sur le site emblématique de l’Hôtel-Dieu de Clermont-Ferrand : une résidence Séniors gérée 'Les Jardins D'arcadie' Résidence Lmnp gérée (Loueur en Meublé Non Professionnel), la Polyclinique sera rénovée pour accueillir une résidence Seniors gérée par Les Jardins d’Arcadie, gestionnaire reconnu dans cette activité. Au quotidien, de nombreux services seront disponibles : restauration, salle multimédia, salon de coiffure et salle de fitness. Le style Art Déco des façades et les éléments de décor d’origine ont été les points de départ du projet d’architecture intérieure, oscillant entre une reconstitution des décors et une déclinaison plus contemporaine pour le plus grand confort des résidents. Charmant Appartement 2 Pièces 36,70 m2 Exposition Ouest, Vue Jardin, climatisé, disposera d’une cuisine équipée, d’une salle d’eau et de placards aménagés. Investissement clé en main: les Jardins d’Arcadie s'occupent de tout : aménagement des logements, mise en location, gestion au quotidien et versement de votre loyer mensuel garanti. Bénéficiez également de nombreux avantages financiers : défiscalisation de vos revenus locatifs, récupération de la Tva sur le prix d'acquisition, loyers sécurisés par le gestionnaire. Tout est accessible en quelques minutes à pied : place de Jaude, jardin Lecoq, commerces, transports ainsi que la future grande bibliothèque et son jardin, attenant à la résidence. Arrêt du tramway juste devant l’entrée de la résidence. Dpe A réalisés nouvelle version. Les informations sur les risques auxquels ce bien est exposé sont disponibles sur le site Géorisques : Georisques. Gouv. Fr ou seront consultatbles lors de la première visite. sont aussi consultables depuis 1er janvier 2025 au plus tard : -une fiche d'information sur les obligations de débroussaillement -une carte des zones assujetties à une obligation de débroussaillement et de maintien en l'état débroussaillé. Au prix de 257 559 Euros dont honoraires 6% à la charge de l'acquéreur pour un montant de15 454 euros. Réf 01A302bc. La présente annonce a été rédigée sous la responsabilité éditoriale de Béatrice Cotte agent commercial immobilier indépendant (Ei) inscrit au registre spécial des agent commerciaux indépendant sous le no Rsac 824 707 103 de Clermont Ferrand, titulaire de la carte de collaborateur noADC 63[Coordonnées masquées]00 026 pour le compte de la Sas Gateway immobilier siret 537 849 093 Cpi no 63[Coordonnées masquées]24 143. Béatrice Cotte Agent commercial immobilier indépendant Port zéro six . [Coordonnées masquées] - Annonce rédigée et publiée par un Agent Mandataire -
Source
Être proprio
Publié le
27 janvier 2026
Vue pour la dernière fois
il y a 1 jour