




Pièces
2 pièces
Surface
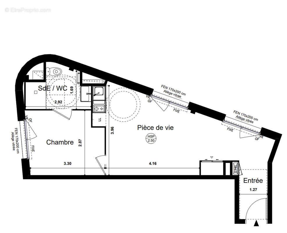
38 m²
Consommation énergétique
Rive Droite agence de Rennes - Yonathan Sourigon vous propose cette Belle Opportunite Pour Investir - A Saisir - Bel investissement patrimonial durable - Rennes Beaulieu - Proche Campus et métro - - Dans résidence moderne à l'architecture soignée, Très beau T2 bien agencé et équipé- Equipements communs: Salle d'étude - salle de réunion - buanderie - locaux vélos - Rooftop - Résicence très plebiscitée par les étudiants - Loyer meublé prévisionnel 780€/mois si mise en location - Ses atouts: Confort assuré - Prestations modernes de qualité - performances énergétiques - Emplacement recherché - Frais de notaire réduits - Disponible Debut 2026 - Ideal Pour Investisseur - Ce logement a toutes les qualités pour vous séduire -
Source
Être proprio
Publié le
26 octobre 2024
Vue pour la dernière fois
il y a 12 heures