




Surface
215 m²
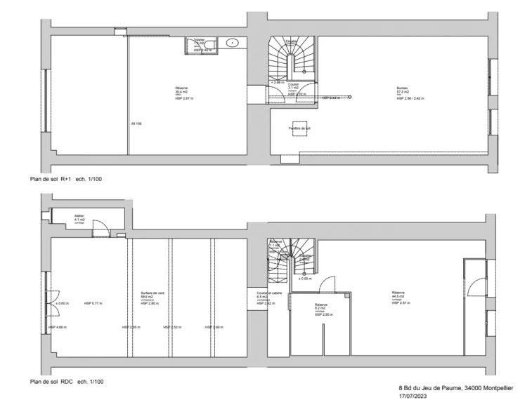
Fonds de commerce Prêt-à-porter, Équipements sportifs Rare et unique sur le Boulevard Jeu de Paume, au sein d'un bel immeuble Haussmannien, vous propose l'acquisition d'un fonds de commerce d'une boutique de prêt à porter ou une cession de droit au bail Boutique de prêt à porter - street wear, d'environ 215m², magasin traversant (facilitant les livraisons). Activité générant un beau Ca (entre 600Ke et 1 million d'euros) avec un panier moyen d'environ 64 euros. Un flux moyen de passage dans la boutique d'environ 81 000 personnes par an. Distribution : 120m² en Rdc (surface de vente) + 90m² en entresol (réserve et bureaux, dont une partie peut servir de show-room). Environnement : Rue prestigieuse desservie par 2 lignes de tramway (et une 3ème d'ici fin d'année 2025). Locomotive présente sur le boulevard : Patagonia, The North Face, NESPRESSO....Ainsi qu'une forte présence d'enseignes indépendantes très réputées sur la place montpellieraine tel que : Majestic, Manifest, Ma Premiere Boutique, Nou, TRUFFERY.... Conditions locatives et bail : -Bail commercial d'une durée de 12 ans datant du 17 octobre 2014 et courant jusqu'au . -Indice d'indexation : Ilc 2ème trim. 2014 : 108,5. -Caution initiale : 6 110 euros. Indexée de manière régulière pour représenter 2 mois de loyer Ht et HC. -Objet du bail : article de sport et textile, avec possibilité de modifier l'activité avec l'accord et l'agréement du bailleur. Pas de restauration possible, pas d'activité avec des nuisances. -Appel de loyer novembre 2024 : 4003,35 euros Ttc et charges incluses. Prix de vente : 130 000 euros dont 10 000 euros d'honoraires.
Source
Être proprio
Publié le
6 mars 2025
Vue pour la dernière fois
il y a 11 heures