




Pièces
3 pièces
Chambres
2 chambres
Surface
67 m²
Parking
Oui
Terrasse
Oui
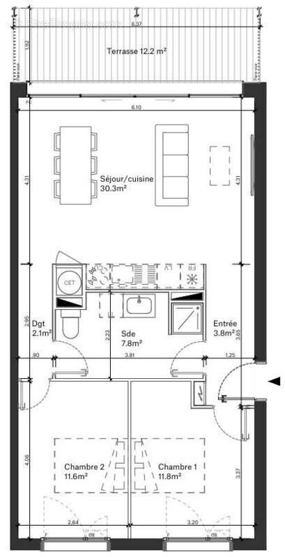
Confort de Vie si Rare aux Chartrons Votre Terrasse Nichee Dans Un Ecrin Vegetalisé Aux Chartrons Nichée au coeur du quartier des Chartrons, cette résidence vous charmera par son îlot paysager, un havre de verdure préservé idéal pour se détendre, flâner ou partager des instants conviviaux. Fidèle à l'esprit du quartier, elle allie sobriété et raffinement, autour de votre résidence vous trouverez tous les commerces et services mais aussi les restaurants et le marché faisant la renommée du quartier. Enfin vous êtes à deux pas des transports en commun et du tramway pour un quotidien facilité. Dès l'entrée, vous découvrez une belle pièce de vie de 31m² avec cuisine ouverte, parfaite pour accueillir vos proches ou partager des instants en famille. Prolongé par une terrasse, le séjour s'ouvre sur l'îlot paysager de la résidence, véritable parenthèse de verdure en coeur de ville. Côté nuit, deux chambres accueillantes et une salle d'eau contemporaine avec Wc complètent ce bien. Un cadre de vie rare et privilégié au coeur des Chartrons. Une place de parking couverte et sécurisé complète ce bien en Sus (15 000€). - Prix Tva 5.5% avec parking : 328 500€ - Prix Tva 20% avec parking : 374 000€ - Aucun travaux à prévoir - Frais de Notaires Réduits - Garanties - Re 2020 - ... Visuel non contractuel - suggestion d'aménagement Votre Terrasse Nichee Dans Un Ecrin Vegetalisé Aux Chartrons Votre conseiller Rh Patrimoine : Maxime Herve Agent commercial (Entreprise individuelle) Rsac J Rcp J Référence annonce : Va3045-Rhpatri Les honoraires sont à la charge du vendeur A propos de la copropriété : Pas de procédure en cours Nombre de lots : 42
Source
Être proprio
Publié le
8 juin 2025
Vue pour la dernière fois
il y a 6 heures