




Pièces
4 pièces
Surface
88 m²
Consommation énergétique
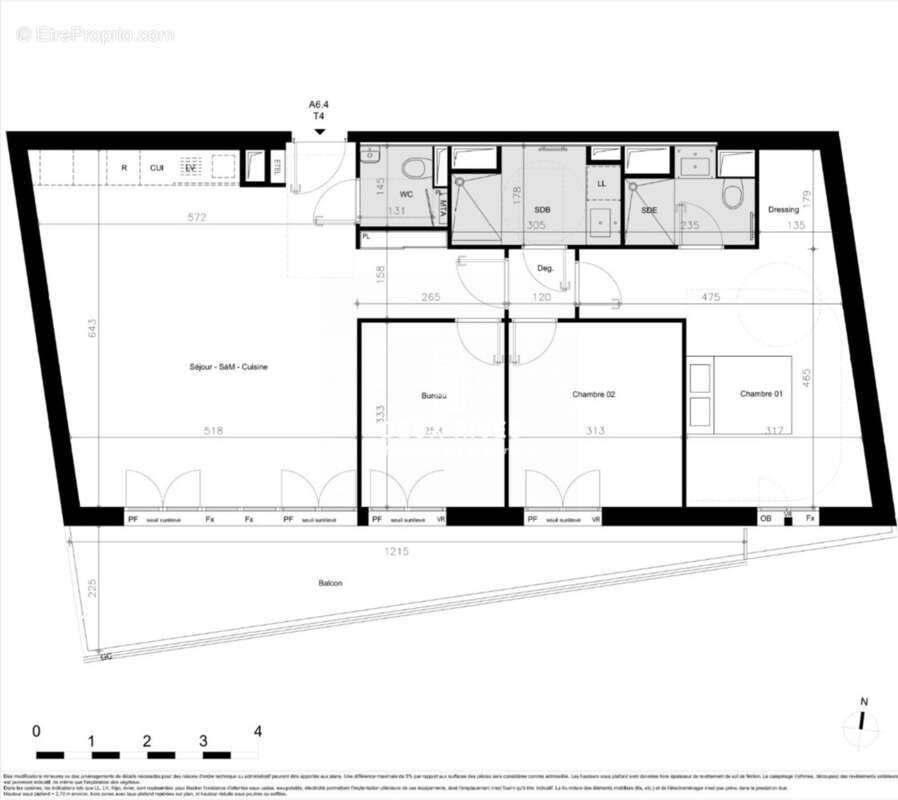
Imaginez-Vous dans un appartement T4 de grand standing, situé au deuxième étage d'un immeuble neuf de 2024, offrant une vue dégagée et une exposition sud-ouest. Cet appartement de 95,59 m² est un véritable havre de paix, idéal pour une famille ou pour ceux qui recherchent un cadre de vie exceptionnel. Découvrez un intérieur neuf et lumineux, baigné de lumière naturelle grâce à ses grandes ouvertures en aluminium et ses portes à double vitrage. La cuisine, nue, est prête à accueillir vos idées de décoration et vos équipements de choix. L'appartement est conforme aux normes Pmr, garantissant ainsi un accès facile et sécurisé pour tous. Cet appartement T4 comprend trois chambres spacieuses, une salle de bains et une salle d'eau, ainsi que deux Wc indépendants. Un balcon de 16 m² vous offre un espace extérieur privatif pour profiter des beaux jours. L'immeuble est équipé d'un ascenseur, et deux places de stationnement intérieures sont incluses, garantissant un confort et une sécurité optimaux. Les parties communes, neuves et soigneusement entretenues, ajoutent une touche de prestige à votre quotidien. Imaginez-Vous vous réveiller chaque matin avec une vue imprenable, prendre votre petit-déjeuner sur votre balcon ensoleillé, et profiter de la tranquillité de votre nouveau foyer. Cet appartement est bien plus qu'un simple logement c'est un véritable investissement dans votre bien-être et votre qualité de vie. Ne manquez pas cette opportunité unique de vivre dans un cadre de vie exceptionnel, alliant modernité, confort et élégance. Pour plus d'informations ou pour organiser une visite, contactez-nous dès aujourd'hui. Votre nouvelle vie vous attend ! À proximité, vous trouverez plusieurs commodités pratiques. À seulement 5 min à pied, vous avez accès à une maternelle, une école élémentaire, un parc et jardin, ainsi que plusieurs restaurants. À 10 min à pied, vous pouvez rejoindre un arrêt de bus et plusieurs commerces d'alimentation générale. À 15 min à pied, vous trouverez plusieurs crèches et collèges. Pour vos besoins médicaux, deux hôpitaux sont accessibles en 10 min en voiture, et deux médecins généralistes sont à 5 min à pied. Honoraires à la charge du vendeur. Dans une copropriété de 160 lots. Aucune procédure n'est en cours. Classe énergie A, Classe climat A Montant estimé des dépenses annuelles d'énergie pour un usage standard : entre 484.00 et 654.00 sur les années 2021, 2022 et 2023 (abonnements compris). Les informations sur les risques auxquels ce bien est exposé sont disponibles sur le site Géorisques : .
Source
Être proprio
Publié le
7 avril 2025
Vue pour la dernière fois
il y a 1 heure