



Pièces
3 pièces
Surface
74 m²
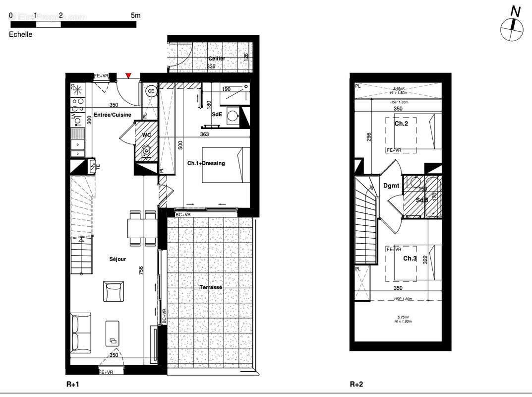
Situé dans une résidence neuve, cet appartement T4 duplex de 74m² se compose d'un séjour de 23 m², de 3 chambres, d'une salle d'eau d'une salle de bain et d'un Wc séparé. Il bénéficie également d'une terrasse de 20 m² et de deux places de parking privative. L'appartement est lumineux et bien agencé, offrant un espace de vie agréable . Le quartier de Lardenne est pratique, avec commerces et services à proximité, ainsi que des transports faciles d'accès. Idéal pour un premier achat, une famille ou un investissement locatif, ce bien permet de profiter d'un logement neuf avec des prestations modernes. D'autres appartements sont disponibles, n'hésitez pas à nous .
Source
Être proprio
Publié le
3 février 2026
Vue pour la dernière fois
il y a 6 heures