



Pièces
3 pièces
Surface
71 m²
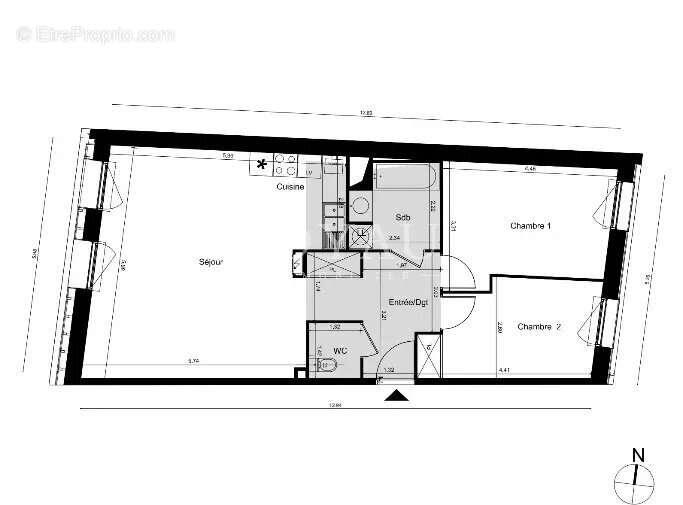
Découvrez ce charmant appartement situé dans le quartier Riquet à Toulouse. Cet appartement de 70,7 m², entièrement rénové en 2025, est idéalement agencé au deuxième étage d'un immeuble. Dès votre entrée, vous serez séduit par l'espace de vie lumineux de 34,8 m² comprenant un séjour ouvert sur une cuisine équipée, offrant un cadre convivial pour recevoir vos proches. Cet appartement dispose de deux chambres confortables, respectivement de 12,6 m² et 10,2 m², vous offrant des espaces de repos agréables et fonctionnels. Une salle de bains moderne de 4,8 m² complète cet espace de vie, offrant confort et praticité au quotidien. L'exposition est vous garantit une luminosité optimale tout au long de la journée, créant ainsi une atmosphère chaleureuse et accueillante. Ne manquez pas cette occasion de vivre dans un appartement entièrement rénové, alliant modernité et confort, au cœur du quartier dynamique de Riquet à Toulouse. Contactez-nous dès aujourd'hui pour organiser une visite et saisir cette opportunité. Livraison fin Juillet 2026.
Source
Être proprio
Publié le
7 octobre 2025
Vue pour la dernière fois
il y a 2 heures