
Pièces
4 pièces
Surface
73 m²
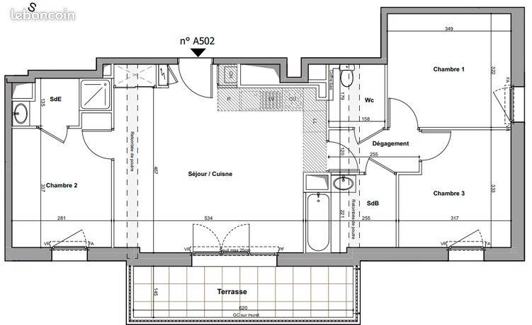
L'agence Locale vous propose à la vente ce T4 de 73m2 . Situé au coeur du quartier Saint-Donatien, dans un secteur privilégiée au sein d'un quartier familial et recherché. A proximité immédiate des commerces, des transports en commun, des espaces verts et autres commodités du quotidien. Ce T4 se compose d'une cuisine ouverte sur le salon-séjour, de trois spacieuses chambres, d'une salle de bain, une salle d'eau et des Wc. De plus, l'appartement dispose d'une terrasse de 8.99m2. Une place de parking en sous sol est présente afin de sécuriser votre véhicule. Idéal investisseurs: un loyer de marché estimé à 1200 euros/mois, ce bien offre une rentabilité de 3,65 %.
Source
Être proprio
Publié le
19 septembre 2025
Vue pour la dernière fois
il y a 1 heure