



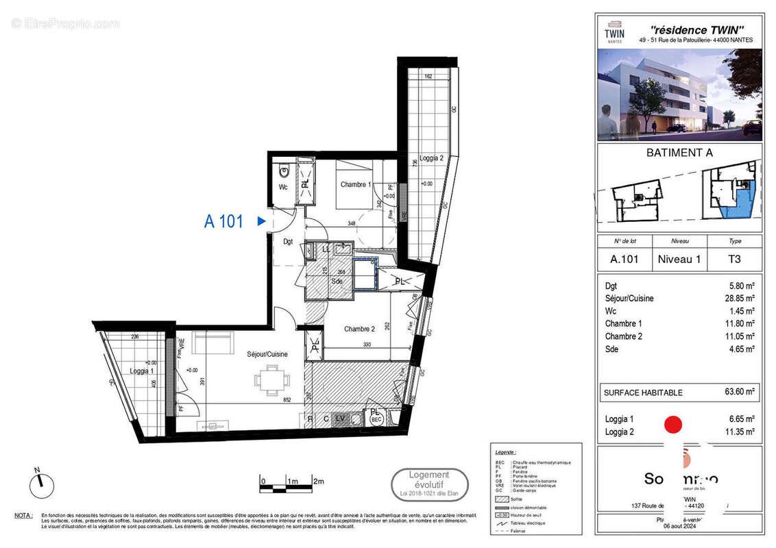
Pièces
3 pièces
Surface
64 m²
Nantes Venez vous renseigner pour ce magnifique T3 dans un cadre verdoyant et privilégié, au coeur du Parc de la Gaudinière. Profitez d'un environnement paisible, à proximité des commerces, transports et écoles. Ce programme de qualité propose 16 logements du studio au 3 pièces. Prix promoteur. Livraison 3éme trimestre 2026. (4.55 % honoraires Ttc à la charge de l'acquéreur.) Copropriété de 16 lots ().
Source
Être proprio
Publié le
26 février 2024
Vue pour la dernière fois
il y a 6 heures