




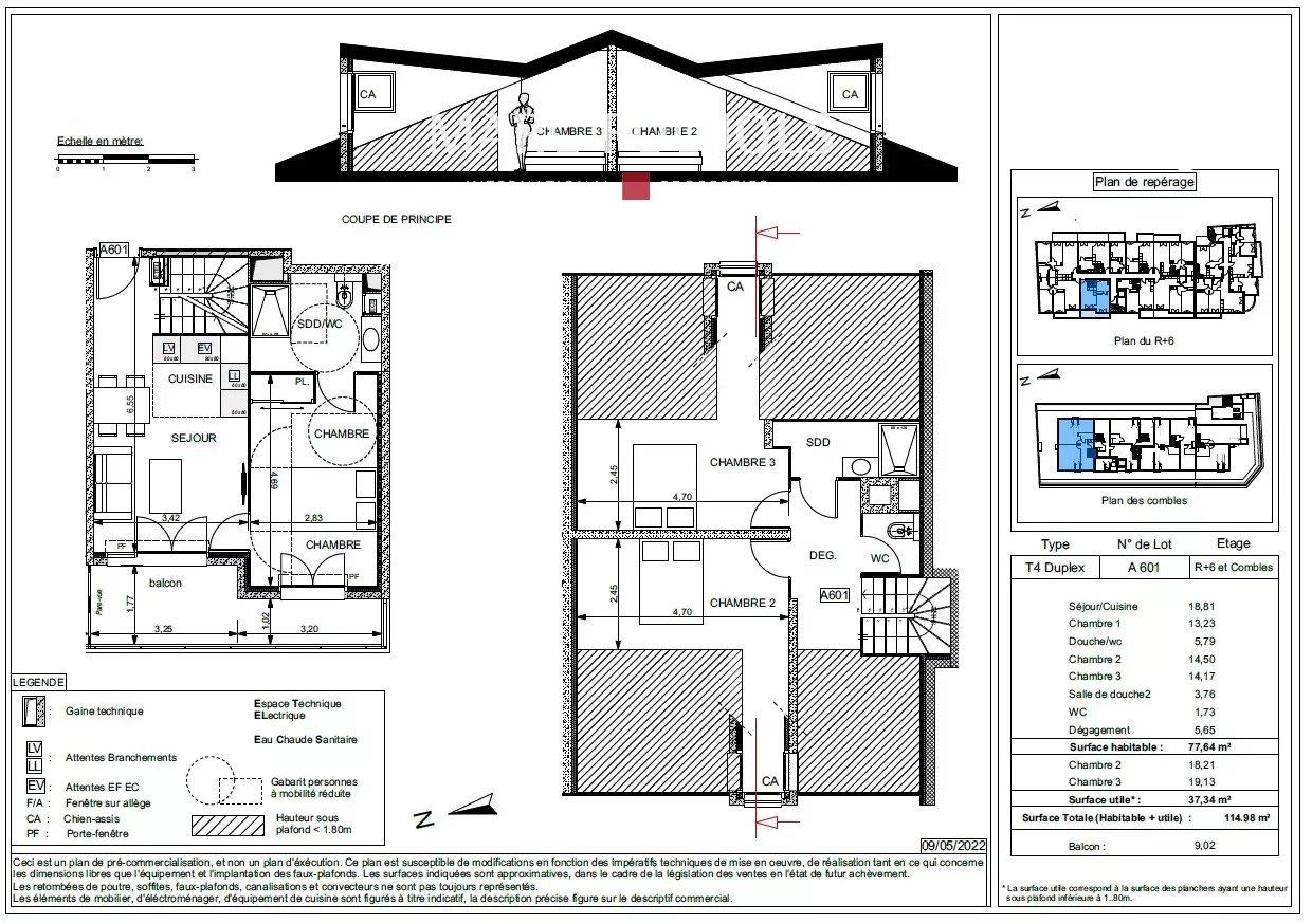
Pièces
4 pièces
Chambres
3 chambres
Surface
77 m²
Étage
6
Ascenseur
Oui
Balcon
Oui
Au cœur du quartier Riquier, très apprécié pour ses élégantes boutiques, ses places ombragées et son architecture typiquement niçoise, découvrez cet appartement neuf duplex de 78 m² situé au 6ème et dernier étage d'une résidence à l'architecture vivement contemporaine ! L'appartement se compose comme suit: ✅ Entrée ✅ Séjour avec cuisine ouverte ✅ Balcon de 9 m² ✅ Chambre avec salle d'eau privative et Wc ✅ A l'étage, 2 chambres avec salle d'eau et Wc séparé ✅ Place de stationnement en sous-sol ? Livraison prévisionnelle 1er trimestre 2026 Autres lots et duplex disponibles à partir de 502 000 €.
Source
Être proprio
Publié le
12 mars 2025
Vue pour la dernière fois
il y a 23 heures