




Pièces
4 pièces
Surface
88 m²
Jardin
Oui
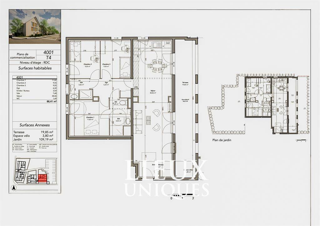
Lieux Uniques ® Tours-Orléans-Blois x Propriétés Privées. Cédric Larzul au [Coordonnées masquées] pour ce grand appartement de 88.41 m² avec son jardin de 109.19 m², à proximité de l'ensemble des commerces, des services, de l'autoroute A10 et situé sur Tours Nord. Ce grand appartement de Rdc comprend : une entrée (de 3.54 m²), une salle d'eau (de 7.68 m²), un Wc (de 1.49m²), un salon-séjour-cuisine (de 38.46 m²), un dégagement (de 6.32 m²), une chambre 1 (de 11.82 m²), une chambre 2 (de 9.55 m²), une chambre 3 (de 9.55 m²), une terrasse (de 19.85 m²), un espace vélos (de 3.80 m²) et un grand jardin (de 109.19 m²). MON Avis : pour le coup c'est un peu Unique, un grand appartement de Rdc, un grand jardin et un garage à vélo, idéalement situé à proximité de tous les commerces, des services, des hôpitaux et de l'autoroute. Chauffage et eau chaude au gaz. Huisseries Pvc. Volets roulants. L'appartement est orienté Sud, Ouest, Est. Le jardin est constitué de Haies végétales et clôtures grillagées simple torsion plastifiées 120cm de hauteur autour des jardins privatifs. 1 Parking extérieur. MON Conseil : rare sur le secteur avec un tel jardin ! Lieux Uniques ® Rennes-Dinard - [Coordonnées masquées] - plus d’informations sur 3w lieuxuniques com. Le prix de vente est de 267.000 euros honoraires d’agence inclus (honoraires d’agence à la charge du vendeur). Immobilier de Luxe Lieux Uniques ® - Immobilier de Prestige Lieux Uniques ® - Immobilier de Charme Lieux Uniques ®. Rcs Blois : 790 024 848. Lot : 4001.
Source
Être proprio
Publié le
3 octobre 2025
Vue pour la dernière fois
il y a 2 heures