




Pièces
3 pièces
Surface
78 m²
Consommation énergétique
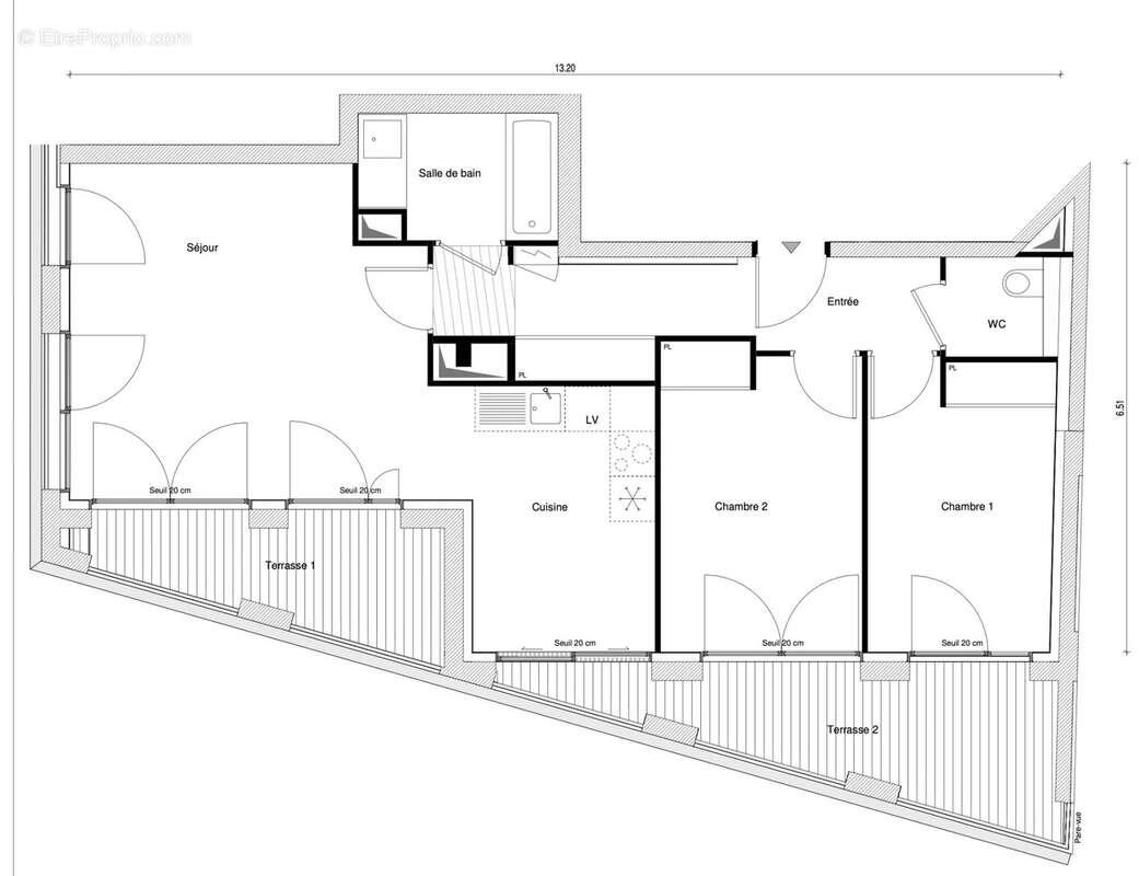
Découvrez ce T3 de 63.93m2, situé au 2ème étage. L'appartement dispose d'une entrée de 7.09m2, un séjour/cuisine de 27.17m2. Deux chambres de 11.14 et 12.92m2, une salle de bain et un wc indépendant. De plus, une loggia accessible depuis le séjour/cuisine complète cet appartement. Contactez-Nous pour plus d'informations ! Cave et cuisine incluses dans le prix. Images d'illustration, non contractuelles.
Source
Être proprio
Publié le
3 juin 2025
Vue pour la dernière fois
il y a 6 heures