




Pièces
5 pièces
Surface
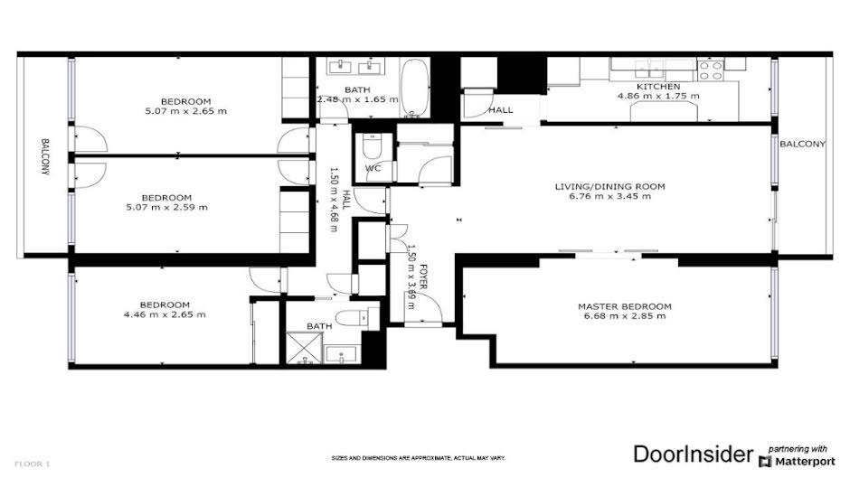
112 m²
Consommation énergétique
Convention - Plaisance L'Adresse Cambronne Paris 15 vous propose à la vente un bel appartement familial 5 pièces de 111 m 2 carrez + 10m2 de balcons . L'appartement, en très bon état, se compose d'une entrée, un grand séjour-salle à manger, cuisine séparée pouvant s'ouvrir sur le salon, buanderie, quatre chambres, une salle de bain, une salle d'eau, un Wc indépendant et de nombreux rangements. Plan modulable. Deux grands balcons avec double exposition sur le séjour et les chambres. Une cave complète la prestation. Prestations de standing au sein de la copropriété : Piscine couverte au dernier étage, solarium sur toit terrasse avec vue panoramique. Gardiennage 7/7 - 24h/24 Metro Plaisance (L13) : 7 min Gare Montparnasse : 12 min (4.50 % honoraires Ttc à la charge de l'acquéreur.) Copropriété de 540 lots (Pas de procédure en cours). Charges annuelles : 8265 euros.
Source
Être proprio
Publié le
5 septembre 2023
Vue pour la dernière fois
il y a 7 heures