




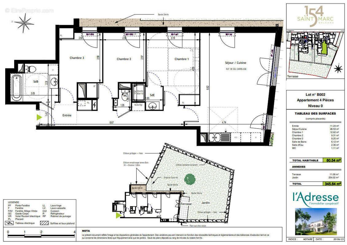
Pièces
4 pièces
Chambres
3 chambres
Surface
81 m²
Ascenseur
Oui
Consommation énergétique
Appartement 4 pièces 81 m² Au coeur d'un quartier résidentiel très prisé qui a préservé ses charmes, ses venelles, ses parcs et ses jardins pour offrir un coin de campagne en ville. À moins de 10 min en voiture du centre historique d'Orléans, avec ses 26 appartements, la résidence est résolument confidentielle. Elle vous propose des T3 et T4 De 62M² à93M² à partir de 270 000€ Les logements bénéficient de pièces de vie particulièrement claires et chaleureuses tout au long de l'année. L'ensemble des appartements profitent de belles expositions, pour la plupart plein sud, et d'une luminosité naturelle abondante permettant à chacun d'en profiter, dès l'arrivée des premiers rayons du soleil. Les chambres et les suites parentales, avec salle d'eau, assurent à chaque membre de la famille un confort reposant. Pour une qualité de vie optimale, tous les résidents disposent d'un espace extérieur dans le prolongement de leur séjour-cuisine. Les jardins privatifs, balcons et terrasses s'ouvrent sur les vues verdoyantes offertes par le coeur d'îlot généreusement paysager. Cette résidence est proche des transports: Tram, Bus, Ecoles, Commerces Disponible Prix Promoteur Frais de notaire 2.5% Pour tous renseignements contactez Isabelle Peignien au [Coordonnées masquées] Pour trouver votre solution immobilière en Résidence principale ou secondaire, Défiscalisation, Lmnp, Location, Gestion immobilière. Les informations sur les risques auxquels ce bien est exposé sont disponibles sur le site Géorisques : Isabelle Peignien (Ei) Agent Commercial - Numéro Rsac : 2025Ac00003 - Orleans. Surface : 81 m² Non soumis au Dpe A propos de la copropriété : Pas de procédure en cours Nombre de lots : 56 Consommation énergie primaire : Non communiqué Consommation énergie finale : Non mander plus d'informations
Source
Être proprio
Publié le
30 septembre 2024
Vue pour la dernière fois
il y a 12 heures