




Pièces
2 pièces
Surface
46 m²
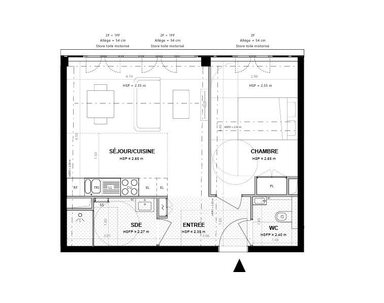
2 pièces - 45,6m2 - Découvrez ce superbe appartement 2 pièces de 45,6 m2, au 4ième étage avec ascenseur, pensé pour offrir un équilibre parfait entre espace, fonctionnalité et confort moderne. Idéalement agencé, il se distingue par des volumes généreux et une distribution optimisée, répondant aux attentes des citadins exigeants. Atouts principaux Grande pièce à vivre de 21 m2 Profitez d’un séjour spacieux et lumineux, facilement aménageable en espace salon et coin repas. Sa configuration ouverte favorise la convivialité et la circulation de la lumière naturelle. Chambre séparée de 12,6 m2 Véritable espace nuit indépendant, la chambre offre de belles proportions pour accueillir un lit double, des rangements et un coin bureau si besoin. Parfaite pour préserver l’intimité et le confort. Salle d’eau moderne de 4,5 m2 La salle d’eau, aux finitions soignées, est équipée de matériaux contemporains et de qualité, garantissant un espace fonctionnel et agréable au quotidien. WC séparé Un atout rare dans cette catégorie de logement, gage de praticité et de confort pour les occupants comme pour les invités. Prestations et confort Parquet massif dans les pièces principales, pour une atmosphère chaleureuse et élégante. Carrelage grand format dans les pièces humides, facile d’entretien et résistant. Isolation thermique et phonique renforcée, garantissant une parfaite tranquillité et des économies d’énergie. Menuiseries double vitrage assurant une excellente luminosité et un confort acoustique optimal. Chauffage performant et ventilation contrôlée, pour un bien-être en toutes saisons. Un cadre de vie privilégié Situé dans une résidence à l’architecture élégante, cet appartement bénéficie de toutes les garanties de la construction moderne : sécurité, accessibilité, conformité aux dernières normes environnementales (Nf Habitat Hqe, Re2020), et accès à des parties communes de qualité. En résumé : Ce 2 pièces est une opportunité rare d’allier espace, confort et modernité dans un environnement recherché. Il conviendra aussi bien à une résidence principale qu’à un investissement locatif de qualité Avec une attention particulière portée à l’isolation, au confort acoustique, à la performance environnementale et à la qualité des matériaux. Les logements bénéficient de prestations haut de gamme,( Domotique , placards aménagés, Chauffage Cpcu, parquet massif , double vitrage , Nf Habitat Hqe ) d’espaces extérieurs soignés et d’un cadre de vie privilégié au cœur d’un quartier recherché.
Source
Être proprio
Publié le
20 juin 2025
Vue pour la dernière fois
il y a 4 heures