




Pièces
3 pièces
Chambres
2 chambres
Surface
49 m²
Ascenseur
Oui
Cave
Oui
Consommation énergétique
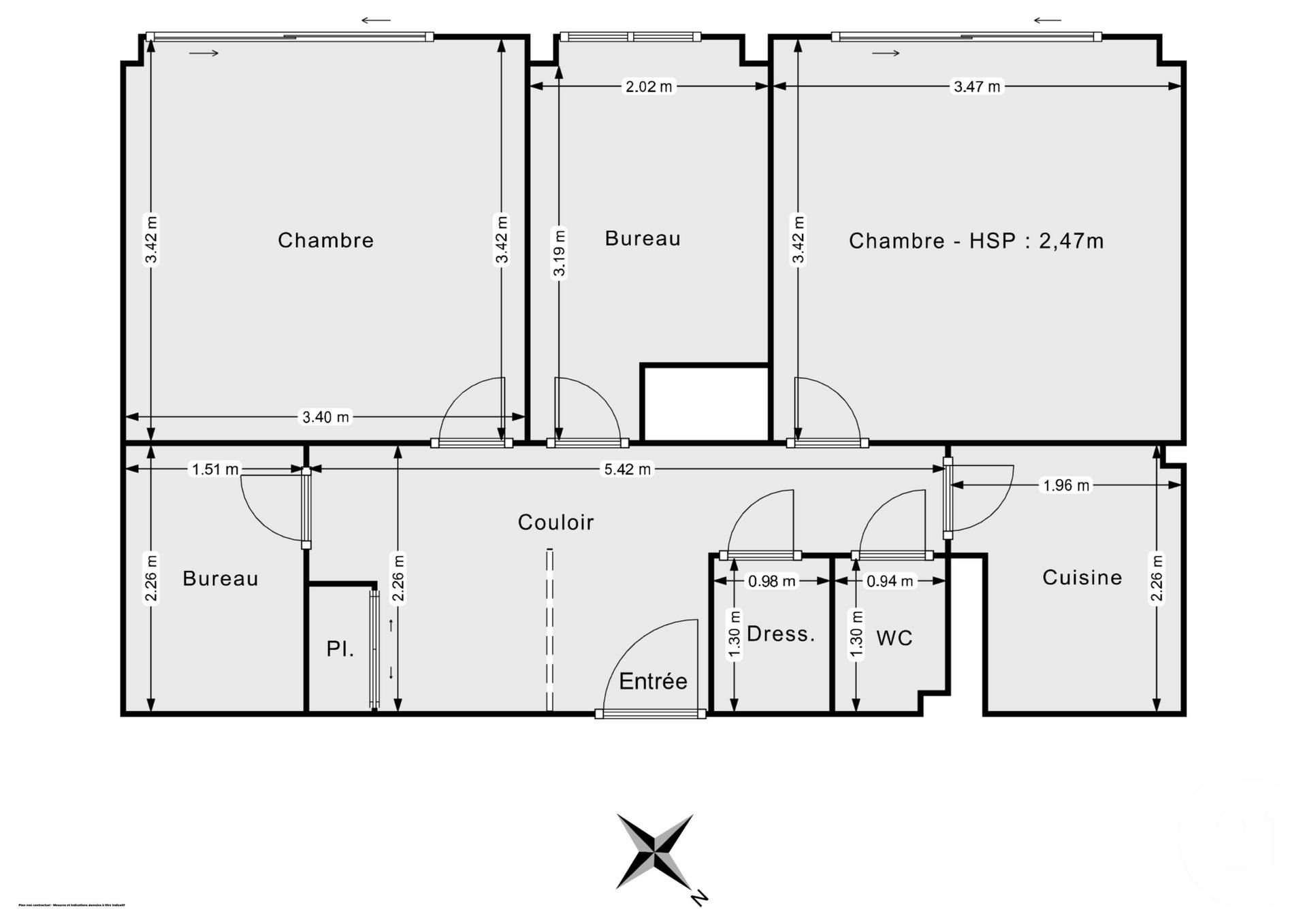
Charonne / Faidherbe-Chaligny : 2/3 pièces ou cabinet médical À deux pas des métros Charonne et Faidherbe-Chaligny, ce bien de 49,14 m² Carrez se situe dans une résidence bien entretenue avec gardien, des années 70 avec ascenseur. Initialement utilisé en cabinet dentaire, il bénéficie d'une organisation très fonctionnelle pour une activité médicale ou paramédicale : plusieurs pièces distinctes faciles à réaffecter. La configuration permet une installation sans gros travaux. Pour un projet d'habitation, le potentiel est tout aussi intéressant. L'ensemble des cloisons peut être repensé car aucun mur n'est porteur dans le lot. Deux devis sont disponibles sur demandes. Le bien est lumineux, équipé de climatiseurs récents, d'un chauffage collectif au gaz,, d'un local sécurisé et d'une cave. Le Dpe est en D. Possibilité d'acquérir un box en supplément. Un emplacement recherché, un plan modulable et un vrai potentiel de transformation. Une opportunité à la fois pour un professionnel de santé souhaitant s'installer rapidement et pour un acquéreur en quête d'un projet sur mesure au cœur du 11e.
Source
Être proprio
Publié le
22 novembre 2025
Vue pour la dernière fois
il y a 6 heures