




Pièces
4 pièces
Chambres
3 chambres
Salles de bain
1
Surface
122 m²
Terrasse
Oui
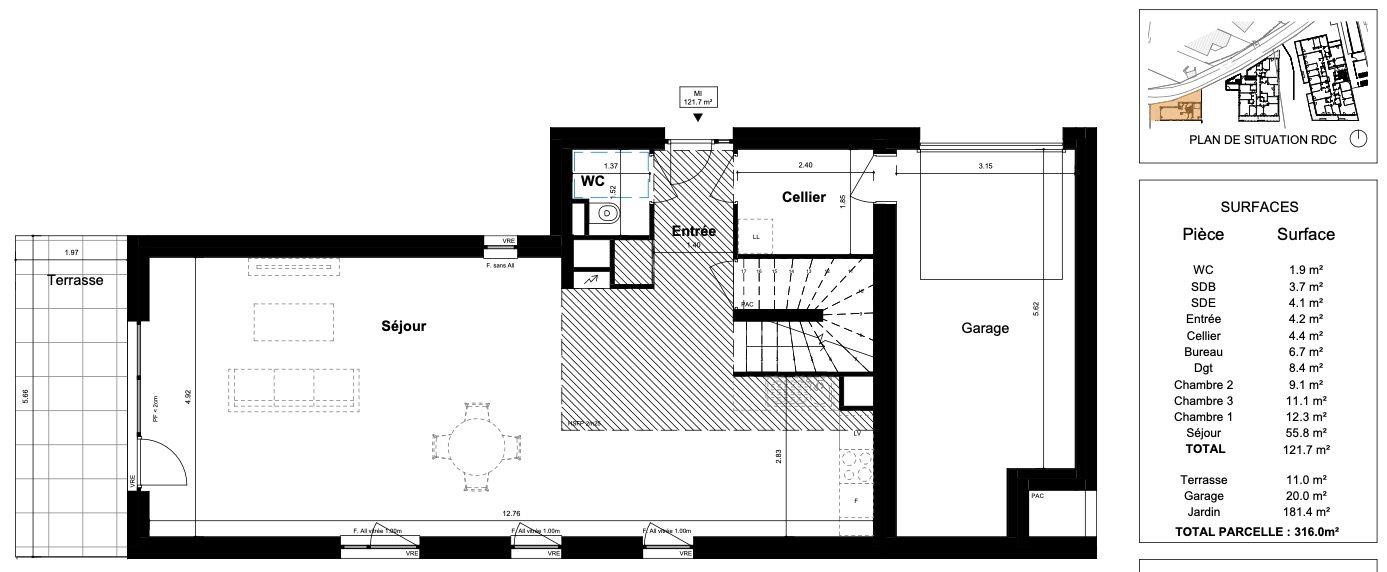
Anova Immobilier vous propose à prix promoteur sans frais supplémentaires : Le programme ROBERST'Ô Rue de la Bussière 67000 STRASBOURG Livraison prévue : 4ème trimestre 2025 Actabilité : Immédiate Fiscalité : Pinel / LMNP Destination : Accession ou investissement Maison 121,70 m2 avec un séjour / cuisine ouverte de 56 m2, trois chambres, un bureau, une salle de bain et une salle d'eau. Terrasse de 11m2 sur jardin de 181m2. Garage de 20m2. Découvrez notre tout nouveau projet à taille humaine, en avant-première. Il se compose de seulement 15 appartements et est idéalement situé en plein coeur du quartier de la Robertsau à Strasbourg. Cette résidence chaleureuse, nichée dans un environnement résidentiel, est à deux pas de nombreux commerces et restaurants, offrant ainsi une situation privilégiée. Ne tardez pas à explorer les nombreux avantages de nos appartements, allant du T2 au T5, tous avec des espaces de stationnement, en prenant contact avec votre conseiller ANOVA. Situation : Proximité centre ville À 20 mn de la gare À 30min de l'aéroport Commerces et centres commerciaux à proximité Proche des transports en commun À proximité de la frontière allemande Les points forts du bien : Proximité centre ville Quartier prisé de la Robertsau Espaces extérieurs Parking Copropriété à taille humaine Proches des commerces et transports Pour plus de renseignements, N'hésitez pas à nous appeler pour connaitre la disponibilité des autres lots. Contactez nous. ANOVA Immobilier 07 Honoraires à la charge du vendeur. Dans une copropriété de 15 lots. Aucune procédure n'est en cours. Non soumis au Dpe. Les informations sur les risques auxquels ce bien est exposé sont disponibles sur le site Géorisques : . Carte pro. Cpi
Source
Être proprio
Publié le
21 décembre 2024
Vue pour la dernière fois
il y a 7 heures