




Pièces
2 pièces
Surface
59 m²
Consommation énergétique
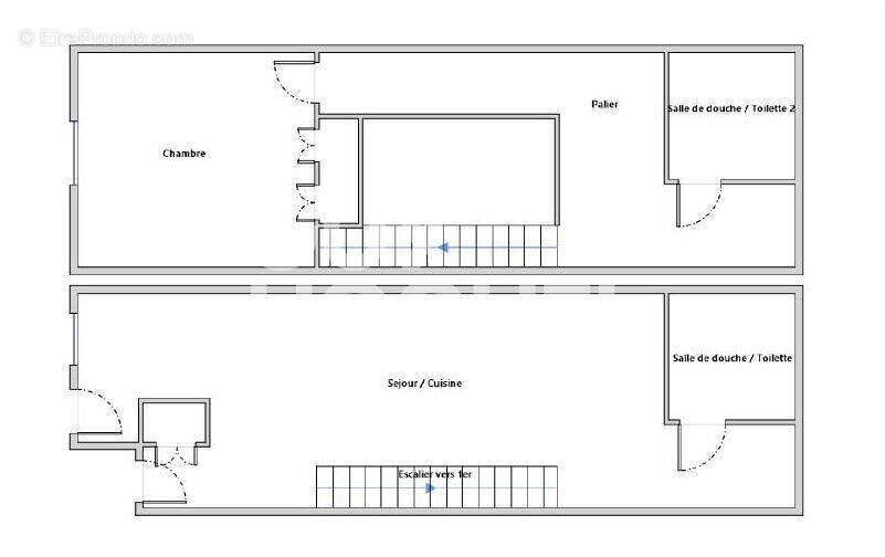
Exclusivité Guy Hoquet Saint-Louis -Quartier Goncourt Paris Xi Dans une cour arborée, au calme total, découvrez ce 2 pièces de 57 m² en duplex, au design d'architecte, situé à proximité immédiate du métro Goncourt. Le rez-de-chaussée se compose d'un salon, d'une cuisine ouverte ainsi que d'une salle d'eau avec Wc. A l'étage, vous trouverez une chambre, un espace bureau ouvert baigné de lumière grâce à la verrière ainsi qu'une seconde salle d'eau avec Wc. Quelques travaux de rafraichissement sont à prévoir. Contactez-Nous pour d'autres informations ou convenir très rapidement d'une visite! Copropriété de 135 lots - dont 135 lots habitation. (Pas de procédure en cours). Charges annuelles : 1529 euros.
Source
Être proprio
Publié le
22 janvier 2026
Vue pour la dernière fois
il y a 1 jour