




Pièces
1 pièce
Surface
29 m²
Étage
3
Ascenseur
Oui
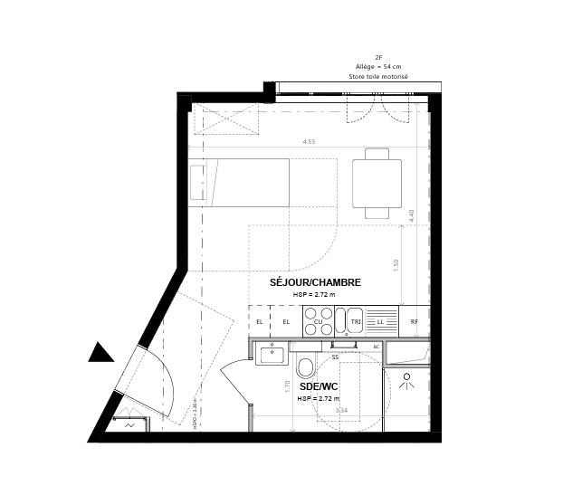
Studio 29,4 m2 au troisième étage, Surface généreuse pour un studio : avec 29,4 m2, ce studio offre plus d’espace que la moyenne des studios parisiens, permettant un agencement confortable et une meilleure qualité de vie[. Configuration open space : tout comme un studio classique, il propose un espace principal unique intégrant salon, chambre et cuisine ouverte ( 24m2) , favorisant une ambiance lumineuse et conviviale Salle d’eau avec Wc Emplacement au troisième étage : cet étage assure une exposition idéale pour la lumière naturelle, tout en limitant les nuisances sonores de la rue. Optimisation de l’espace : grâce à une surface supérieure à la moyenne, il est possible d’aménager des zones distinctes (repos, travail, repas ou rangement) tout en conservant une impression d’espace et de fluidité Confort et fonctionnalité : la surface permet d’intégrer du mobilier compact et multifonctionnel, facilitant le rangement et l’organisation quotidienne Qualité du projet: le studio bénéficie des prestations modernes d’un bâtiment récent (isolation thermique et acoustique performantes, équipements contemporains, etc.). Ce type de studio est idéal pour une première acquisition, un investissement locatif ou pour une personne souhaitant profiter d’un logement bien situé, fonctionnel et lumineux. Avec une attention particulière portée à l’isolation, au confort acoustique, à la performance environnementale et à la qualité des matériaux. Les logements bénéficient de prestations haut de gamme,( Domotique , placards aménagés, Chauffage Cpcu, parquet massif , double vitrage , Nf Habitat Hqe ) d’espaces extérieurs soignés et d’un cadre de vie privilégié au cœur d’un quartier recherché.
Source
Être proprio
Publié le
20 juin 2025
Vue pour la dernière fois
il y a 4 heures