




Pièces
6 pièces
Surface
230 m²
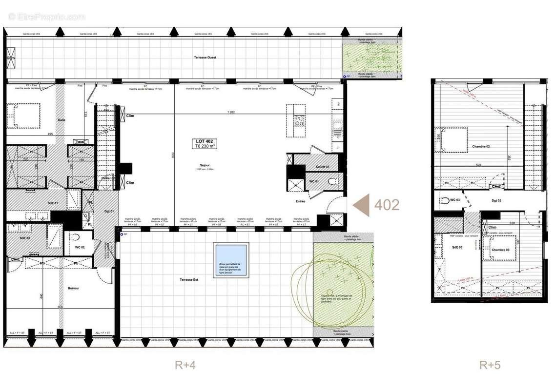
Sous compromis : Le Plus Bel Appartement De Bordeaux À deux pas de la place Gambetta, la résidence sublime les lieux par son architecture soignée. Vouée à devenir une référence au sein du quartier, la composition moderne et magistrale enrichit le patrimoine environnant dans la pure lignée des beaux ouvrages urbains. En toute confidentialité, la résidence rassemble une collection de quelques appartements seulement. Ce dernier étage s'organise de la façon suivante : une entrée avec placards et Wc Indépendant, donnant sur une incroyable pièce de vie avec cuisine de 89m2, qui se distingue par des volumes impressionnants à la faveur d'une hauteur sous plafond de près de 3,50 mètres qui donne toute son ampleur au confort. Grâce aux meilleures orientations et aux dispositions traversantes, la clarté pénètre les espaces tout au long de la journée et joue un rôle de premier plan pour offrir une vie lumineuse. En effet, elle donne sur deux terrasses de 52m2 à l'Ouest et 85m2 à l'Est. Enfin, un premier cellier se rattache à la cuisine, tandis qu'un deuxième cellier se trouve en dessous de l'escalier permettant l'accès au R+5. Coté nuit, on retrouve une magnifique suite parentale avec dressing et salle d'eau, chambre avec placard, un deuxième Wc Indépendant et une salle de bain. L'étage se compose de deux chambres avec placards, une salle d'eau et un Wc Indépendant. Les configurations intérieures parfaitement conçues veillent au confort de chacun : indépendance des parties jour et nuit, convivialité de la cuisine ouverte sur le séjour, suite parentale avec salle de bains et dressing. Deux places de parkings sécurisées en Rdc de l'immeuble complètent cet appartement. Plusieurs prestations vous accompagne tout au long de ce projet : catalogue d'options sur mesure pour aménager au gré de son envie, coaching déco, plusieurs propositions de plans... - Garanties - Normes Rt 2012 - Frais de Notaires Réduits - Aucun travaux à prévoir - Hauteurs sous Plafond - Parquet Contrecollé - Ascenseur - Dernier Etage - Deux parkings - Terrasses - Jacuzzi/Spa en option - Gambetta - ... Contactez-nous pour tout renseignement complémentaire. LE Plus Bel Appartement De BORDEAUX Honoraires à la charge du vendeur. Dans une copropriété de 21 lots. Aucune procédure n'est en cours. Dpe en cours. Les informations sur les risques auxquels ce bien est exposé sont disponibles sur le site Géorisques : . Ce bien vous est proposé par un agent commercial (Entreprise individuelle). Votre conseiller Rh Patrimoine : Maxime HERVE Agent commercial (Entreprise individuelle) Rsac J Rcp J
Source
Être proprio
Publié le
13 mars 2024
Vue pour la dernière fois
il y a 11 heures