



Pièces
6 pièces
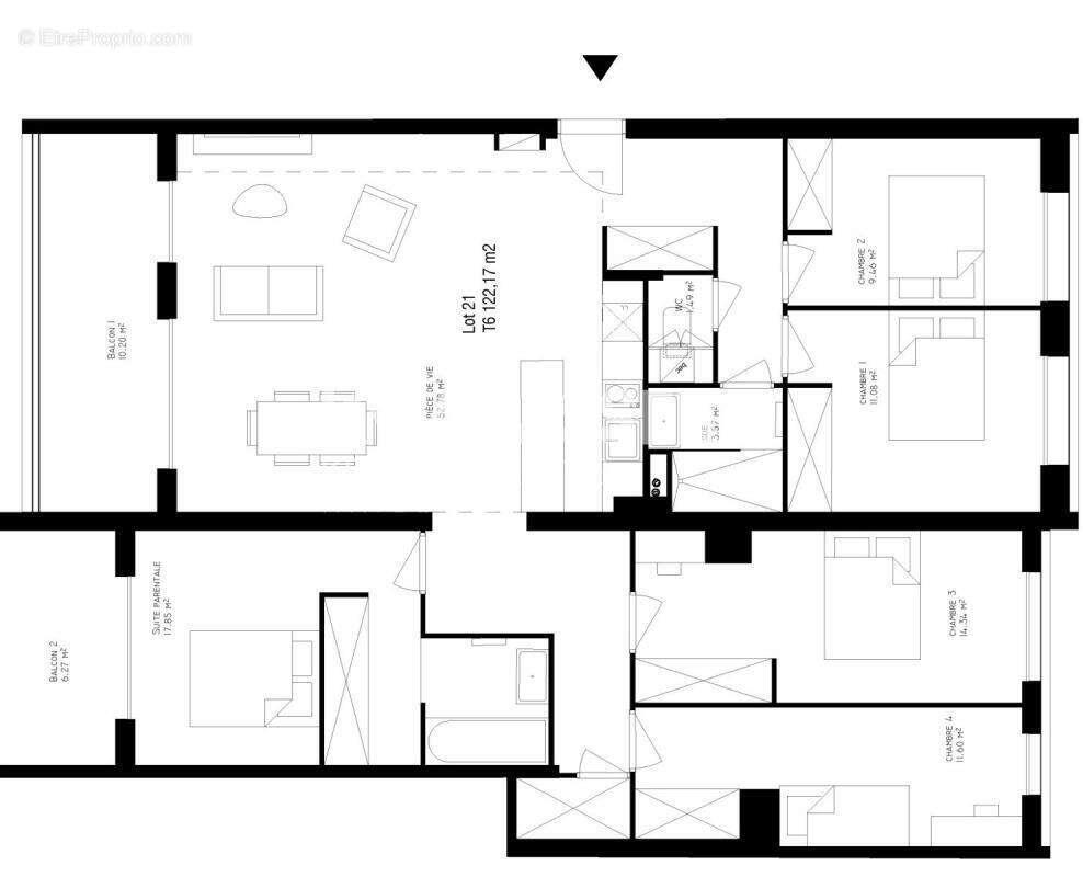
Surface
122 m²
Consommation énergétique
A vendre ce grand appartement familiale en parfait état de plus de 122m² avec 5 chambres dont une suite parentale, cuisine ouverte sur une grande salle de vie de plus de 50m². Les balcons au niveau de la suite parentale et du salon sont orientés Est. L'appartement rénové, lumineux au calme, se trouve au deuxième étage dans copropriété arborée de standing avec gardien à Nice, proche toutes commodités. un stationnement en sus au sein de la résidence. A visiter rapidement
Source
Être proprio
Publié le
27 septembre 2025
Vue pour la dernière fois
il y a 4 heures