
Pièces
2 pièces
Surface
51 m²
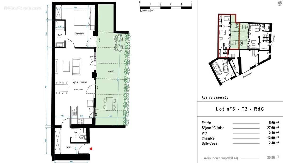
Quartier Notre Dame Dans une résidence neuve, vous découvrirez un appartement type 2 en rez de chaussée avec jardin. Il se compose d'un hall d'entrée avec wc séparé, une grande et lumineuse pièce à vivre donnant sur le jardinet, une chambre et salle de bain. Proche des commodités et transports
Source
Être proprio
Publié le
13 février 2025
Vue pour la dernière fois
il y a 11 heures