




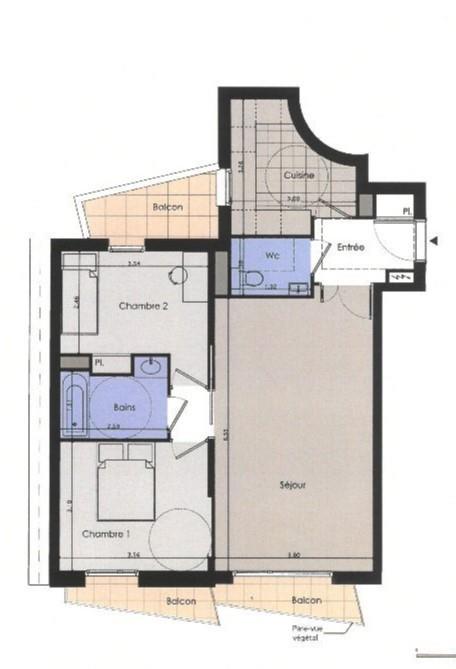
Pièces
3 pièces
Chambres
2 chambres
Surface
65 m²
Consommation énergétique
Proche du métro Convention et de ses commerces. Immeuble récent de 2020 de bon standing, accès Pmr. Appartement 3Pp sans perte de place de 65,35 m² avec trois larges balcons au 3eme étage ascenseur. Beau séjour 25,30m² avec balcon. Double exposition et traversant. Une cuisine séparée. Deux chambres avec balcons. Une salle d'eau. Wc indépendant avec buanderie. Cave. Parquet massif. Visites " expresses " possibles 7J/7 (Hono.acq.inclus 3,93% - 22 lots- pas de procédure en cours-prévision charges annuelle : 3 360€ /an). Dpe : C-C
Source
Être proprio
Publié le
7 novembre 2024
Vue pour la dernière fois
il y a 16 heures