




Pièces
2 pièces
Surface
46 m²
Consommation énergétique
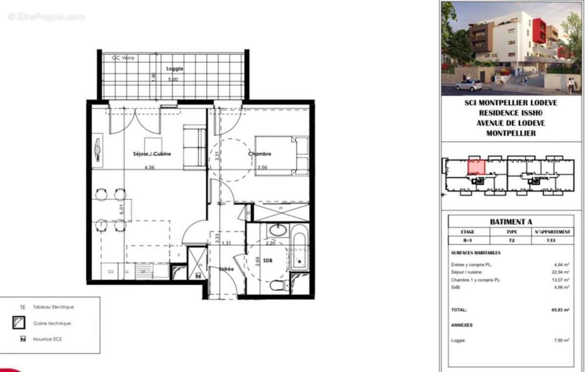
34080 - Montpellier - Avenue De Lodeve- T2 Recent De 46.0 M² Avec Terrasse De 8M²- Place De Parking En Sous Sol - Ideal INVESTISSEURS Efficity, l'agence qui estime votre bien en ligne, vous propose ce charmant appartement idéalement situé à 100m de l'arrêt de tram "Les tonnelles" et des commerces dans une résidence récente de 2017. L'appartement se trouve au 3ème étage d'un immeuble de 4 étages avec ascenseur. L'état général de l'immeuble est excellent, tout comme l'état de la façade, en très bon état. Cet T2 propose un grand salon ouvrant sur une cuisine équipée avec un accès à la terrasse. Une grande chambre de 13m² avec un placard intégré permettant d'accéder également à la terrasse. Une salle de bain moderne offrant la possibilité de l'aménager pour plus de rangements et une place de parking couverte en sous sol complète cet ensemble. Idéal Investisseurs Vendu loué à 685 euros par mois Rentabilité locative brut: 5,4% Laura Tognetti au [Coordonnées masquées] ou par mail à [Coordonnées masquées] Prix de vente: 152 000 € (honoraire à la charge du vendeur) Les informations sur les risques auxquels ce bien est exposé sont disponibles sur le site Georisque : georisques. Gouv. Fr Laura Tognetti - Ei - est Agent Commercial mandataire en immobilier, immatriculé au Registre Spécial des Agents Commerciaux du Tribunal de Commerce de Montpellier sous le n°. Siège social du mandant : effiCity, 48 avenue de Villiers - 75017 Paris - Société par Actions Simplifiée, société au capital de 132 373,05 euros, immatriculée au Rcs Paris 497 617 746 et titulaire de la Carte professionnelle Cpi 75[Coordonnées masquées]02 025 - Cci Paris Idf - Caisse de Garantie : Galian Assurances 89 rue de la Boétie 75008 Paris
Source
Être proprio
Publié le
2 juin 2025
Vue pour la dernière fois
il y a 9 heures