



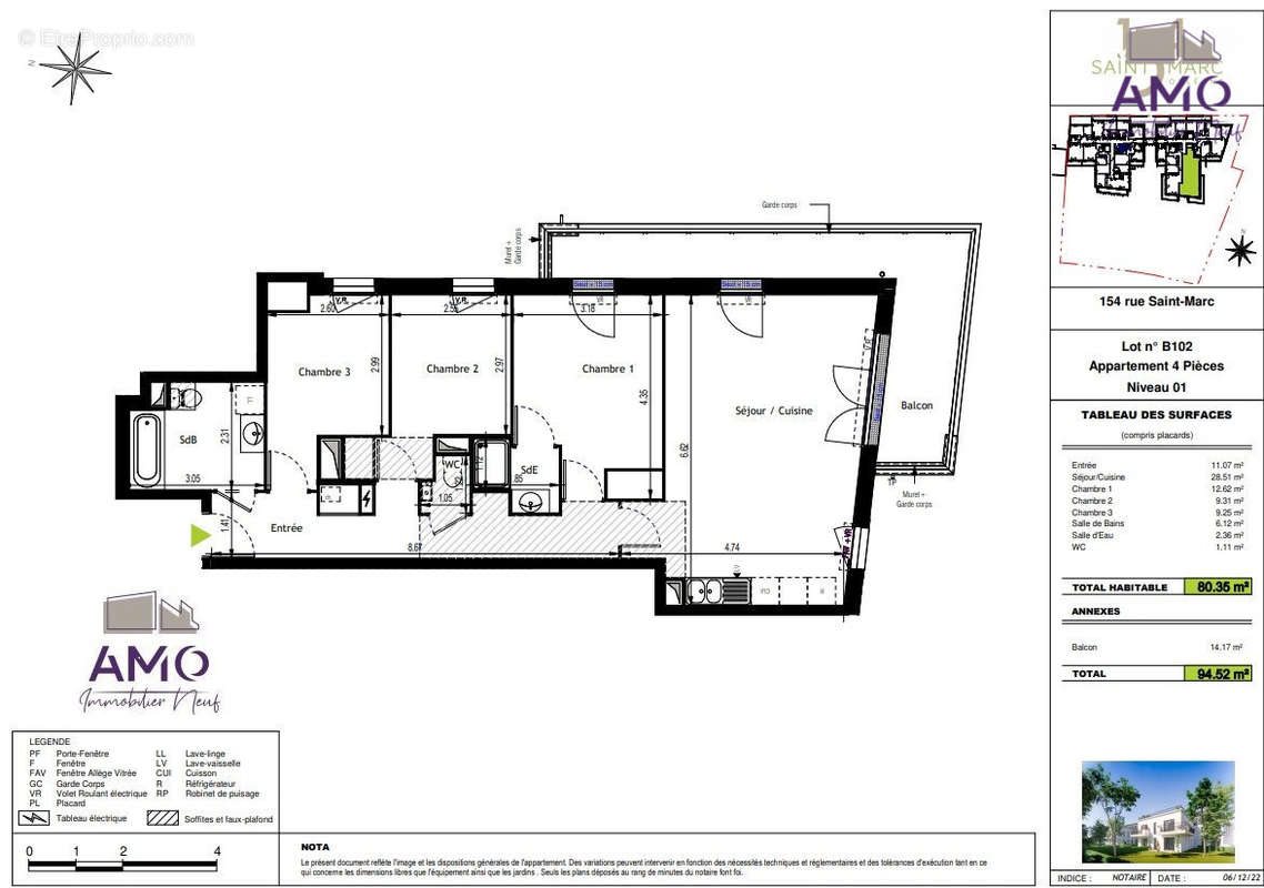
Pièces
4 pièces
Surface
80 m²
Consommation énergétique
À Vendre : Appartement T4 Neuf au 1er étage, offrant un cadre de vie d'exception à Orléans. Logement Neuf à Saisir ! Découvrez ce superbe appartement contemporain qui vous offre une entrée accueillante menant à une pièce de vie spacieuse, idéale pour se détendre ou recevoir. La cuisine ouverte, entièrement aménagée et équipée, s'intègre harmonieusement à l'espace de vie. Cet appartement comprend également trois chambres confortables, une salle d'eau moderne, une salle de bains et un Wc indépendant pour plus de praticité. Les atouts de ce bien : Balcon, parfait pour profiter de moments en plein air Place de parking en sous-sol, garantissant sécurité et commodité Ne manquez pas cette opportunité d'acquérir un logement neuf alliant confort et fonctionnalité ! Cet appartement, bien qu'étant neuf, est déjà achevé et prêt pour un emménagement immédiat. Acheter un bien neuf vous offre des avantages significatifs, notamment des frais de notaire réduits et des garanties de construction qui s'étendent jusqu'à 10 ans après l'achèvement de la résidence. Situé à moins de 10 minutes en voiture du centre historique d'Orléans, cet appartement combine tranquillité et accessibilité, tout en étant à proximité des commodités essentielles. Idéalement positionné, il se trouve à quelques pas des commerces, des transports en commun (tram et bus) et des établissements scolaires. Pour toute information supplémentaire, n'hésitez pas à nous au [Coordonnées masquées]. Ne laissez pas passer cette chance, prenez rendez-vous pour votre visite dès aujourd'hui ! Honoraires à la charge du vendeur. Dans une copropriété de 19 lots. Aucune procédure n'est en cours. Classe énergie C, Classe climat C Montant moyen estimé des dépenses annuelles d'énergie pour un usage standard, établi à partir des prix de l'énergie de l'année 2021 : entre 539.00 et 729.00 . Les informations sur les risques auxquels ce bien est exposé sont disponibles sur le site Géorisques : .
Source
Être proprio
Publié le
23 janvier 2026
Vue pour la dernière fois
il y a 1 jour