




Pièces
3 pièces
Surface
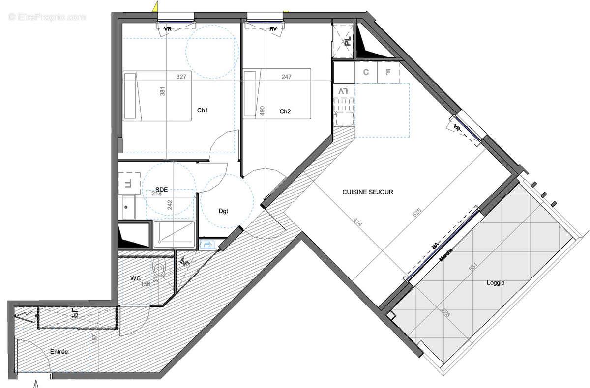
71 m²
Montpellier Résidence moderne Proximité : Mer / Plages / Autres villes / Autoroute La résidence : - Des économies d’énergie - Choix des systèmes de chauffage les plus performants et des solutions d’éclairage adaptées - Des économies d’eau - Une isolation acoustique conçue pour apporter un confort global - Logement fonctionnel - Aménagement et équipements pratique Prestations : - Accès sécurisé - Ascenseur - Interphone - Accès parking - Local deux roues - Parc/jardin Commodités : - Ligne de tramway à moins de 10 min à pied - Proximité avec la mer - Accès gare Sncf et aéroport facile en voiture - Supermarchés à moins de 10 min en voiture Placement sûr à fort potentiel locatif. Surface de 71,30 m2 Prix à partir de 352 000 € Prix En Direct - Pas De Frais D'agence Honoraires A La Charge Du VENDEUR Avantages du neuf : Frais de notaires réduits, Personnalisation possible du logement, Exonération possible partielle ou totale de la taxe foncière pendant 2 ans, Logement conforme aux dernières normes de construction et de sécurité (Normes thermiques, phoniques, électriques, accessibilités, …), Haut niveau de confort de vie, Dernières technologies au service de l’habitat, Possibilité de bénéficier du Prêt à Taux Zéro (Ptz), Réduction d’impôt possible dans le cadre d’un investissement (Jusqu’à 63 000 € avec le dispositif Pinel), Garanties offertes par le neuf (jusqu’à 10 ans après la livraison du logement) : Garantie de parfait achèvement, Garantie d’isolation phonique, Garantie de bon fonctionnement, Garantie décennale (10 ans), … Contact : Joignable par Téléphone ou Mail ou Sms du Lundi au Samedi de 8h à 19h ou par Sms ou Mail après 20h et le Dimanche Mots Clés : SUD De France Herault 34 Montpellier Centre Ville Tramway Gare Tgv Aeroport Parc Parking Plages Mer PORT Mentions légales : Agence Utopia Immobilier Siren : Rcs Montpellier 802 964 650 Carte professionnelle No802 964 650 / Cpi 34[Coordonnées masquées]00 045 Garantie financière Galian NoB A Assurance Rcp Covea No120 137 405 Hamb-B306 E
Source
Être proprio
Publié le
7 mars 2024
Vue pour la dernière fois
il y a 11 heures