




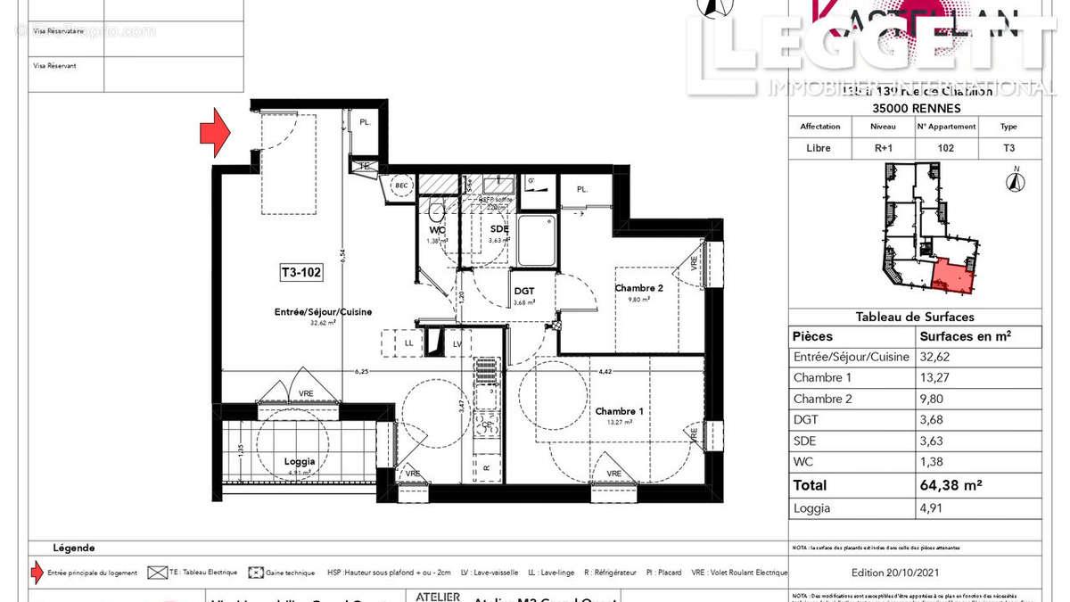
Pièces
3 pièces
Surface
64 m²
A13387 - Le nouveau Rennes se déplace vers la magnifique gare Tgv et son quartier d’affaires EuroRennes, centre névralgique de la vie et des connexions de la capitale bretonne. C’Est à deux pas de ce nouveau centre, au calme, dans le très prisé quartier Sainte Thérèse que Le Kastellan va s’ériger. Une, des prestations soignées, l’accès à une multitude de services, (commerces, métro à proximité, …). Voilà les attraits d’une ville dynamique, constamment sur le podium des villes préférées des français. D'autres biens de ce type (T3) sont disponibles, afin d'avoir plus de renseignements veuillez l'agence. Les informations sur les risques auxquels ce bien est exposé sont disponibles sur le site Géorisques :
Source
Être proprio
Publié le
25 février 2024
Vue pour la dernière fois
il y a 9 heures