




Pièces
4 pièces
Surface
75 m²
Consommation énergétique
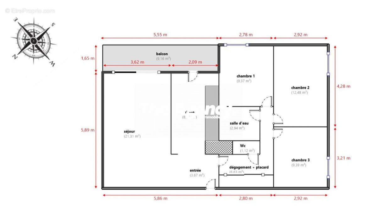
« Au top de la colline » 9Ème Le Redon Type 4 de 75m² avec terrasse de 9m² avec vue verdoyante et grande cave de 9m² + Place de parking privative extérieure en SUS Copropriété au coeur de la colline, au calme absolu et sécurisée avec piscine Idéalement situé à deux pas des calanques et du complexe sportif de Luminy et à proximité de nombreux commerces et commodités du quotidien, établissements scolaires, facultés et école de commerce ainsi que la ligne de bus la plus régulière (B1) et la ligne 24. Venez découvrir cette copropriété au coeur de la colline et au calme absolu, fermée et sécurisée par un portail automatique, jouissant d'une grande piscine refaite en 2023, des écoles maternelle et primaire et d'un centre social proposant de nombreuses activités et entièrement refait cette année. Au sein de celle-ci, The Agency vous propose en exclusivité un type 3 de 75,52m² Loi Carrez au 3ème étage sur 5 avec ascenseur mais entrée par le rez-de-chaussée. Il se compose de la manière suivante : Côté jour : Un hall d'entrée, un salon / séjour et une cuisine indépendante, meublée et équipée, le tout exposé Sud-Est et s'ouvrant sur une terrasse de 9.16m² avec vue dégagée et arborée. Côté nuit : Un dégagement avec grand placard de rangement, 3 chambres, une salle d'eau et un Wc indépendant. Enfin, pour les adeptes du stockage et du rangement, une grande cave de 9.09m². Possibilité d'acquérir en Sus une place de parking privative extérieure. Ce bien séduira les amateurs de calme et de nature, tout en restant proche de tous les avantages de la cité urbaine. Idéal pour une famille. Charges (Apt) : 191.00 /mois (comprend l'entretien de la copropriété et espaces verts, ascenseur, piscine, électricité des communs, eau froide, concierge, assurance copropriété et honoraires syndic) Charges (Place de parking) : 15.00 /mois Taxe foncière (Le tout) : 950.00 /an ' The Agency Immo, la méthode pour une transaction réussie ' Honoraires inclus de 6.23% Ttc à la charge de l'acquéreur. Prix hors honoraires 207 000 . Dans une copropriété de 1000 lots. Quote-Part moyenne du budget prévisionnel 2 292 /an. Aucune procédure n'est en cours. Classe énergie C, Classe climat C Montant estimé des dépenses annuelles d'énergie pour un usage standard : entre 760.00 et 1060.00 sur les années 2021, 2022 et 2023 (abonnements compris). Les informations sur les risques auxquels ce bien est exposé sont disponibles sur le site Géorisques : . Votre conseiller The Agency : Marion CRISTIANO Agent commercial (Entreprise individuelle)
Source
Être proprio
Publié le
3 février 2026
Vue pour la dernière fois
il y a 4 heures