




Pièces
6 pièces
Surface
187 m²
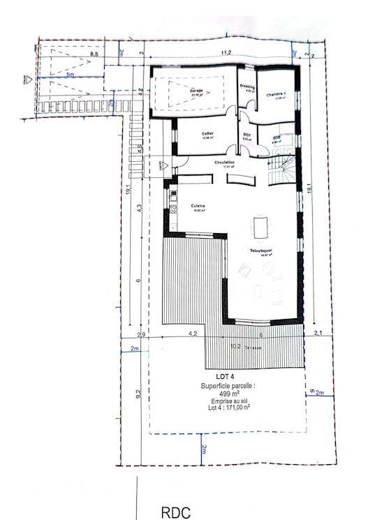
Iad France - Rozenn Heslan () vous propose : Petit lotissement de 6 maisons d'architectes en perspectives. L’Architecture se voudra contemporaine avec un choix de matériaux de qualité. Cette maison se construira sur un terrain de 500 m² environ exposition traversante avec 2 terrasses au rez-de-chaussée exposée sud-est et sud-ouest ainsi qu'une terrasse à l'étage attenante à une belle chambre. Superficie total de 210 m² environ, encore une possibilité d'effectuer quelques changements en plan intérieur Emplacement idéal à la sortie de Cesson Sévigné à 200m de Rennes et ses transports en commun. Une localisation idéale par sa proximité avec les écoles, les commerces, la rocade, les transports et équipements sportifs et culturels tout en restant au calme d'une impasse pour plus de sérénité et d'intimité. Honoraires d’agence à la charge du vendeur. Bien non soumis au Dpe. Les informations sur les risques auxquels ce bien est exposé sont disponibles sur le site Géorisques : La présente annonce immobilière a été rédigée sous la responsabilité éditoriale de Mlle Rozenn Heslan Ei (Id 48704), mandataire indépendant en immobilier (sans détention de fonds), agent commercial de la Sas France immatriculé au Rsac de Rennes sous le numéro , titulaire de la carte de démarchage immobilier pour le compte de la société France Sas. Retrouvez tous nos biens sur notre site internet. Loi Alur : Honoraires charge vendeur. (Gedeon )
Source
Être proprio
Publié le
14 novembre 2024
Vue pour la dernière fois
il y a 11 heures