




Pièces
4 pièces
Chambres
3 chambres
Salles de bain
1
Surface
92 m²
Jardin
Oui
Consommation énergétique
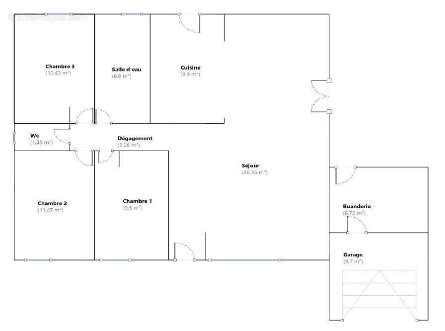
1894 - L'immobilier vous propose VILLA T4 Plain-Pied + Dependance + JARDIN Un Oasis de Tranquillité à Château Gombert (Marseille 13e) Secteur : Marseille 13ème - Château Gombert - Quartier Résidentiel de Villas Description du Bien : Découvrez le charme d'une maison de plain-pied de type 4 de 128 m2 surface au sol ( villa 92 m2 + dépendance 36 m2), en état neuf dans le secteur prisé et calme de Château Gombert. Nichée dans un quartier résidentiel de villas, cette propriété est bâtie sur un terrain plat de 476 m² offrant un cadre de vie exceptionnel. ? Les Atouts Majeurs : Pièce de Vie Lumineuse (36 m²) : Un espace ouvert et accueillant comprenant un séjour, une salle à manger et une cuisine américaine neuve entièrement équipée. La luminosité est garantie pour vos moments de convivialité. Côté Nuit Optimal : 3 belles chambres équipées de placards intégrés : Chambre 1 : 12,32 m² Chambre 2 : 10,66 m² Chambre 3 : 12,32 m² Commodités Intérieures : Une salle de bain (4,25 m²) avec baignoire, un Wc séparé (1,34 m²), et une buanderie (4,18 m²). Dépendance de 36 m2 mitoyenne à la maison : Un espace supplémentaire idéal pour un bureau, une salle de jeux, un atelier, ou pour recevoir. Prestations et Confort : Chauffage : Radiateurs à bain d'huile, assurant une chaleur douce et économique. Isolation : Menuiseries en double vitrage pour un confort thermique et sonore optimal. Revêtement de Sol : Carrelage au sol moderne imitation parquet, alliant esthétique et facilité d'entretien. Localisation et Proximité : L'emplacement est un atout majeur pour cette propriété ! Commodités à Pied : Accédez facilement à tous les commerces de proximité (pharmacie, boulangerie, boucherie, supérette) et aux activités culturelles. Éducation : L'École de la Parade se trouve à proximité. Transports : Arrêts de bus à quelques pas permettant de rejoindre rapidement le Métro La Rose. Date de réalisation du diagnostic énergétique : consommation énergie primaire : 121 kwh/m²/an consommation énergie finale, classée C et estimation des émissions 3kg eq co2/m2 an classe Montant estimé des dépenses annuelles d'énergie pour un usage standard : entre 870 € et 1220 € sur les années 2021, 2022 et 2023 (abonnements compris). Coup de cœur assuré ! Ne manquez pas cette opportunité unique d'emménager sans travaux dans un environnement privilégié. Taxe foncière 2996 € prix :500 000 € Frais d'Agence Inclus Pour toute information complémentaire ou pour organiser une visite, contactez nous. Honoraires à charge vendeur. Contact Hervé Agostini - Ei: Agent commercial en immobilier enregistré au Rsac du greffe d'Marseille sous le n° 929 884 titulaire de la carte de démarchage immobilier pour le compte de la société 1894-L'immobilier. La présente annonce a été rédigée sous la responsabilité éditoriale de l’agent commercial en contact. Selon l'article L.561.5 du Code Monétaire et Financier, pour l'organisation de la visite, la présentation d'une pièce d'identité vous sera demandée.
Source
1894-immo
Publié le
31 août 2025
Vue pour la dernière fois
il y a 9 heures