




Pièces
3 pièces
Chambres
2 chambres
Salles de bain
1
Surface
64 m²
Ascenseur
Oui
Terrasse
Oui
Cave
Oui
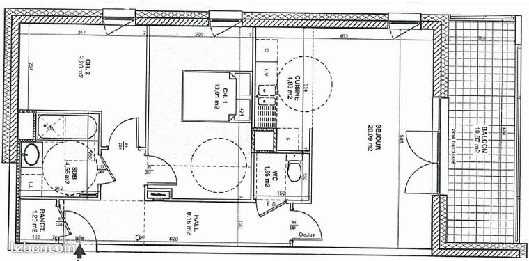
Strasbourg-Cronenbourg 3P 64,50m² terrasse & cave Situé rue Isabelle Eberhardt, dans une résidence de 2014 parfaitement entretenue, découvrez ce lumineux 3 pièces de 64,5m² au 2ème étage avec ascenseur. Actuellement occupé, le logement sera libre, au plus tard, de toute occupation le . L’Appartement offre une entrée avec rangement, un agréable séjour ouvert sur une cuisine équipée, deux chambres, une salle de bains, un wc séparé ainsi qu’une terrasse de 10 m² idéale pour profiter des beaux jours. Une cave complète le bien. Garage possible en supplément. Caractéristiques : - Chauffage collectif - Dpe : B – Ges : A - Charges annuelles : 1.841,77 € (soit 153,48 € / mois) - Taxes Foncières : 1.137,00 € - Copropriété : 49 lots principaux - Aucune procédure en cours menée sur le fondement des articles 29-1 A et 29-1 de la loi n°65-557 du 10 juillet 1965 et de l’article L.615-6 du Cch - Dpe : B / Ges : A (date de réalisation du Dpe : ) Consommation énergie primaire : 101 kWh/m²/an Montant estimé des dépenses annuelles d’énergie pour un usage standard : entre 549,00 € et 743,00 €/an (prix moyen des énergies indexées sur les années 2021, 2022 et 2023 abonnement compris) - Les informations sur les risques auxquels ce bien est exposé sont disponibles sur le site - Certaines images ont été générées ou retouchées par intelligence artificielle (ChatGPT – OpenAI), et ce, à titre illustratif. Photos non contractuelles - [2025] [Agence Joël Ohayon]. Image générée ou retouchée avec ChatGPT (OpenAI). Utilisation autorisée dans le cadre de la commercialisation du bien. Les honoraires de 10.000,00 € sont à la charge de l'acheteur et représentent 5,13% Ttc - Prix hors honoraires : 195.000,00 € - Prix honoraires inclus : 205.000,00 € Agence Joël Ohayon Pour le visiter contactez-mander plus d'informations
Source
Avendrealouer-Pj
Publié le
17 novembre 2025
Vue pour la dernière fois
il y a 3 heures