




Pièces
1 pièce
Surface
87 m²
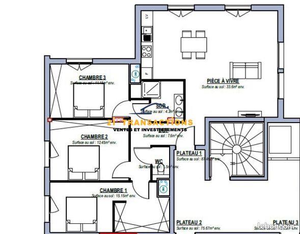
À deux pas du tramway, de la place Bellevue, du Centre Deux et des universités, ce grand plateau brut de 87,46 m² vous offre une toile vierge pour créer un espace de vie spacieux et moderne. Parfait pour un projet de résidence principale, de colocation ou d'investissement locatif meublé. Points clés : ? Compteurs eau et électricité déjà posés ? Évacuations prêtes à raccorder ? Plan d'aménagement fourni pour se projeter ? Copropriété bien tenue avec ascenseur ? Secteur vivant et bien desservi Note: Rendu 3D possible sur demande. Une opportunité intéressante pour un investissement locatif ou un premier achat à Saint-Étienne. Localisation : 2 rue Nicolas Chaize, Saint-Étienne Ce bien est proposé au prix de 82 650 . Les honoraires sont à la charge du vendeur. C'est un appartement en copropriété. Les informations sur les risques auxquels ce bien est exposé sont disponibles sur le site Géorisques : Pour plus d'informations, prenez contact avec David Arnaud au O7 81 O4 O1 4O La présente annonce immobilière a été rédigée sous le contrôle de Anthony Capuano immatriculé au Rcs de Saint-Etienne sous le numéro 879 085 256. Honoraires à la charge du vendeur. Dans une copropriété de 108 lots. Aucune procédure n'est en cours. Non soumis au Dpe. Les informations sur les risques auxquels ce bien est exposé sont disponibles sur le site Géorisques : . Votre conseiller 2I Transactions : David ARNAUD Agent commercial (Entreprise individuelle)
Source
Avendrealouer-Pj
Publié le
21 juillet 2025
Vue pour la dernière fois
il y a 8 heures