




Pièces
3 pièces
Chambres
2 chambres
Surface
81 m²
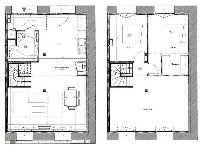
Au cœur du centre historique de la rive droite de Rouen, à 10 minutes à pieds de la gare Sncf, ce programme de logements neufs en construction nouvelle (bât E,C, & I), et en réhabilitation rénovation complète (bât F,G & J), propose une large gamme d'appartements satisfaisant tous types de demandes: (voir plan de masse annexé à l'annonce). Livraison prévue: 4e trimestre 2026 Ce T3 en duplex situé au rez-de-chaussée du bât G exposé plein sud, propose un bel ensemble séjour/cuisine de 49.55 m2, 2 belles chambres à l'étage dont une avec dressing, une entrée avec placard, une salle de douche comprenant le wc. Un jardin privatif de 49.45 m2 complète ce bien en prolongation directe du séjour. Possibilité de place de parking en sous-sol sécurisé en sus : me . D'autres lots allant du studio au 4 pièces sont encore disponibles, permettant de réaliser un investissement en déficit foncier pendant 10 ans pour de la location nue ou en logements neufs classiques. Renseignements sur simple appel téléphonique. L'acquisition d'un bien neuf en Vefa (vente en l'état futur d'achèvement), qui retient votre attention, débute par la signature d'un contrat de réservation que je suis en mesure de vous fournir. Cela évite par ailleurs, son achat éventuel par un candidat acquéreur plus réactif. Toute candidature à l'achat sera soumise à la présentation d'un plan de financement solide. Les informations sur les risques auxquels ce bien est exposé sont disponibles sur le site Géorisques : Georisques. Gouv. Fr. Réseau Immobilier Capifrance - Votre agent commercial (Rsac N°320 483 217 - Greffe de Rouen) Thierry Dugat Entrepreneur Individuel - Réf.304121
Source
Avendrealouer-Pj
Publié le
23 juin 2025
Vue pour la dernière fois
il y a 1 jour