




Pièces
3 pièces
Chambres
2 chambres
Salles de bain
1
Surface
69 m²
Ascenseur
Oui
Parking
Oui
Terrasse
Oui
Balcon
Oui
Cave
Oui
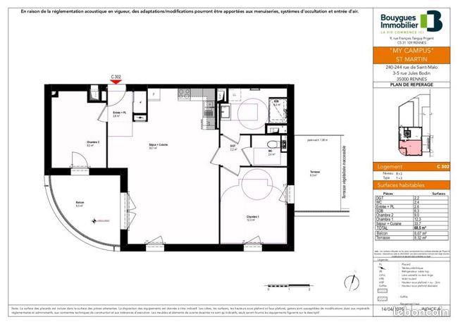
Sans Honoraires. Rennes - Nord Saint-Martin. Résidence neuve idéalement située 3 rue Jules Bodin. Agréable T3 au 3ème étage avec ascenseur, entrée avec placard, pièce de vie de 33m²avec cuisine ouverte aménagée (non équipée d'électroménager) exposée sud, balcon, deux chambres dont une donnant accès à une terrasse de 8m², salle d'eau et Wc séparé. Chauffage collectif et eau chaude inclus dans les charges. Les abonnements d'eau froide et d'électricité sont à la charge du locataire. L'appartement est loué avec une place de parking privée en sous-sol sécurisé. Les photos proposées et la visite virtuelle (T3) sont celles du logement témoin afin de présenter les prestations (sols, meubles cuisine, salle d'eau..). Réservations sur plan uniquement, pas de visite possible avant la remise des clés. Appartement neuf disponible le . Logement soumis aux plafonds de ressources Lli, zone A. Situation idéale entre le centre ville et Grand Quartier, commerces accessibles à pied, ligne de bus arrêt Trois Croix (ligne 12 et C1). Référence à rappeler lors de nos échanges : B077 - 372414 Les informations sur les risques auxquels ce bien est exposé sont disponibles sur le site Géorisques : Logement Locatif Interm.
Source
Avendrealouer-Pj
Publié le
27 août 2025
Vue pour la dernière fois
il y a 3 heures