




Pièces
2 pièces
Chambres
1 chambre
Surface
42 m²
Ascenseur
Oui
Parking
Oui
Balcon
Oui
Consommation énergétique
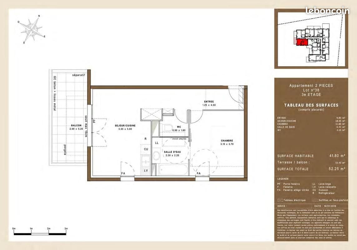
Appartement T2 A Montpellier. Residence Canopée. Nous vous proposons un appartement T2 d'une superficie de 42.05m² situé au 3ème étage avec ascenseur, comprenant : un séjour d'environ 18.55m² avec coin cuisine aménagé et équipé (hotte, plaque de cuisson, réfrigérateur), un balcon de 10.45m², une chambre, une salle d'eau avec Wc séparés. Au sous-sol, un parking n°3. Eau chaude et chauffage collectif urbain. Entretien parties communes, entretien ascenseur et espaces verts communs, compris dans les provisions sur charges mensuelles et donnant lieu à une régularisation annuelle. Les honoraires de location Ttc (à la charge du locataire) incluent le montant de rédaction des états des lieux facturé pour 126.00 euros Ttc, après réalisation lors de l'entrée dans les lieux. Disponible le . Pour plus de détails sur ce logement, vous pouvez consulter la fiche descriptive de ce bien, sur votre site internet Afedim. Les informations sur les risques auxquels ce bien est exposé sont disponibles sur le site Géorisques : Référence annonce : Date de réalisation du diagnostic : Honoraires à la charge du locataire : 546 € Ttc Dépôt de garantie : 587 € Montant des charges : 112 € / mois Montant estimé des dépenses annuelles d'énergie pour un usage standard : entre 300 € et 440 € sur les années 2021, 2022 et 2023 (abonnements compris).
Source
Avendrealouer-Pj
Publié le
21 décembre 2025
Vue pour la dernière fois
il y a 5 heures