




Surface
866 m²
Terrasse
Oui
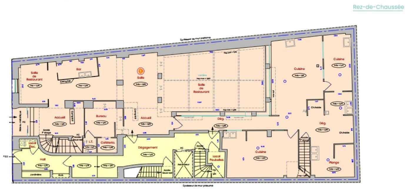
Pont Cardinet, Les Batignolles, Consult'Im vous propose à la location un immeuble en R+3 de 866 m² avec une terrasse (possibilité de l'agrandir). Immeuble idéal pour siège social, restauration, formation, évènementielle professionnel...Nombreuses possibilités. CARACTERISTIQUES De L'OFFRE Au Rdc, un plateau de 270 m² avec une terrasse de 13 m² (43 m² au sol) et un sous-sol sain de 15 m² (51 m² au sol) Au 1er étage, un plateau de 251 m² Au 2ème étage, un plateau de 107 m² Au 2ème étage, un plateau de 105 m² Au 3ème étage, un plateau de 105 m² CONDITIONS FINANCIERES Bail : 3/6/9 ans Disponibilité :
Source
Avendrealouer-Pj
Publié le
5 août 2025
Vue pour la dernière fois
il y a 4 heures