



Pièces
1 pièce
Surface
22 m²
Ascenseur
Oui
Parking
Oui
Balcon
Oui
Consommation énergétique
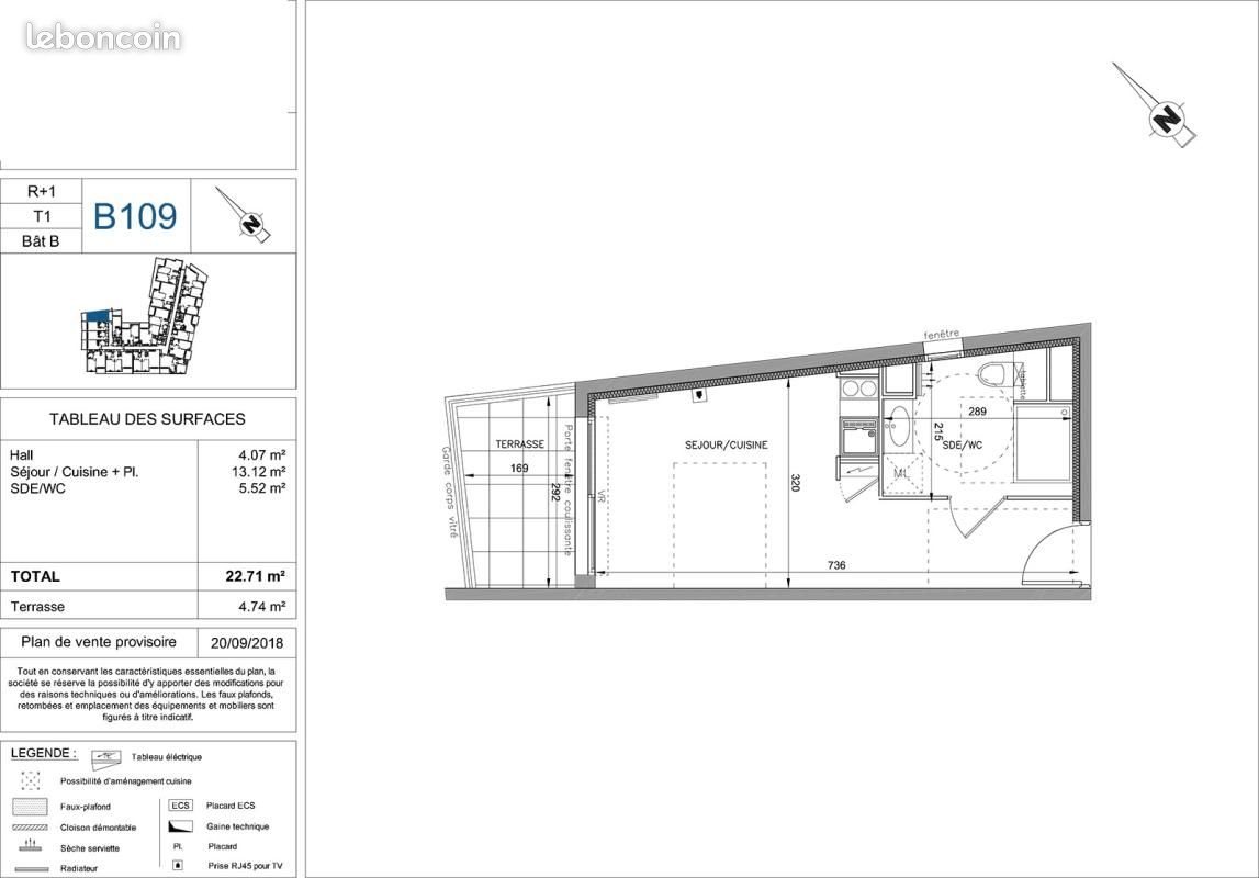
Appartement T1 Montpellier, les parc Montcalm et Croix d'Argent sont situés à quelques minutes de la résidence neuve Le Parc Des Poetes, appartement T1 n°3B109 de 22,88 m² avec balcon de 4,72 m². Situé au 1ème étage avec ascenseur, il comprend, un séjour de 12,74 m² avec cuisine aménagée ouverte, une salle d'eau avec un Wc. Place de parking n°125 en sous-sol. Chauffage électrique et eau chaude individuel gaz. Entretien parties communes, ascenseur et espaces verts communs, compris dans les provisions sur charges mensuelles et donnant lieu à une régularisation annuelle. Les honoraires de location sont facturés directement au locataire par le partenaire pour 500 € Ttc. Quant aux honoraires de rédaction des états des lieux, ils sont facturés par Afedim Gestion pour 150€ Ttc, après réalisation, lors de l'entrée dans les lieux. Plus de détails sur notre site internet Afedim. Les informations sur les risques auxquels ce bien est exposé sont disponibles sur le site Géorisques : Référence annonce : Date de réalisation du diagnostic : Honoraires à la charge du locataire : 295 € Ttc Dépôt de garantie : 376 € Montant des charges : 45 € / mois Montant estimé des dépenses annuelles d'énergie pour un usage standard : entre 113 € et 153 € par an. Prix moyens des énergies indexés sur l'année Non communiqué (abonnements compris)
Source
Avendrealouer-Pj
Publié le
4 décembre 2025
Vue pour la dernière fois
il y a 15 heures