



Pièces
3 pièces
Chambres
2 chambres
Surface
60 m²
Ascenseur
Oui
Parking
Oui
Balcon
Oui
Consommation énergétique
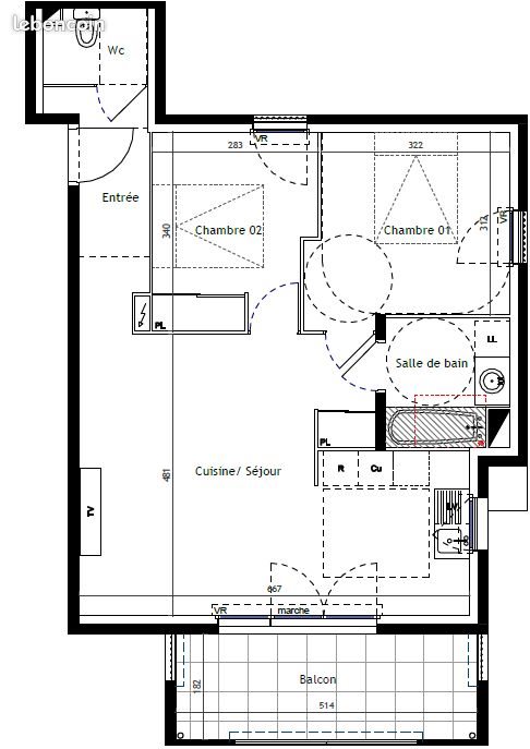
Appartement 3 pièces 60 m² Pas De Frais D'agence Nîmes Est - Quartier Courbessac A louer dans une résidence neuve et sécurisée appartements de type 3 comportant : - un hall d'entrée, - une belle pièce à vivre donnant sur un balcon de 9,40 m², - Cuisine aménagée, semi-équipée, - 2 chambres, - 1 salle de bain, - Wc séparés. Ce logement bénéficie de 2 places de stationnement. Chauffage individuel électrique et eau chaude collective au gaz. Les points forts : ? Environnement calme proche commodités ? Extérieur (Balcon) ? Places de parking couvertes Logements conventionnés soumis à conditions de ressources. (Gedeon ) Surface : 60 m² Date de réalisation du diagnostic énergétique : Consommation énergie primaire : Non communiqué Consommation énergie finale : Non communiqué Les informations sur les risques auxquels ce bien est exposé sont disponibles sur le site Géorisques :
Source
Avendrealouer-Pj
Publié le
9 janvier 2026
Vue pour la dernière fois
il y a 1 jour